
Hannoversche Volksbank Immobilien GmbH
Frau Renate Kusion
051 ···
Nr. anzeigenPreise & Kosten
Provision für Käufer
provisionsfrei
Lage
Sehlem ist ein Ortsteil der Gemeinde Lamspringe und zählt ca. 1.000 Einwohner.
Im Ort befinden sich ein Kindergarten mit Krippe und mehrere Sport- und Freizeitvereine. Zahlreiche Einkaufsmöglichkeiten finden Sie in Bodenburg, Lamspringe, Bad Salzdetfurth sowie in Hildesheim.
Das Haus
Kategorie
Einfamilienhaus
Baujahr
1900
Bezug
nach Absprache
Energie & Heizung
Warum sehe ich diese Anzeige? – Du siehst diese Anzeige basierend auf Ihrer Navigation auf unserer Website und den Suchkriterien, die du verwendet hast.
Energieausweistyp
Bedarfsausweis
Gebäudetyp
Wohngebäude
Baujahr laut Energieausweis
1900
Wesentliche Energieträger
Öl
Gültigkeit
10.08.2025 bis 09.08.2035
Effizienzklasse
H
Endenergiebedarf
443,10 kWh/(m²·a)
Weitere Energiedaten
Haustyp
Holzhaus
Energieträger
Öl
Heizungsart
Zentralheizung
Details
Objektbeschreibung
Kurzbeschreibung
Fixer-Upper für entschlossene Träumer
Objekt
Dieses um 1900 auf einem ca. 586 m² großen Eigentumsgrundstück errichtete Haus bietet Ihnen eine Wohnfläche von ca. 116 m². Die Nutzfläche beläuft sich auf ca. 88 m².
Das Haus befindet sich in einem renovierungsbedürftigen Zustand und bietet...
Ausstattung
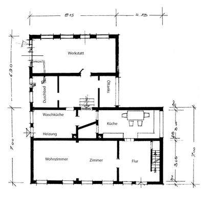
Raumaufteilung im Erdgeschoss:
- Flur
- Duschbad
- Küche
- Wohnzimmer (mit Kaminanschluss)
- Hauswirtschaftsräume
Raumaufteilung im Obergeschoss:
- Flur
- fünf Zimmer (Durchgangsräume)
- Wannenbad
- Balkon
Die Deckenhöhe in einigen Räumen des Obergeschosses beträgt nur ca. 2m. Das Haus...
Weitere Informationen
Sonstiges
Sie besitzen eine Immobilie? Wir haben die richtigen Kontakte, um sie zu verkaufen.
Rufen Sie uns gerne unter Telefon 0511-70077-0 an oder informieren Sie uns per Mail unter info@hanvbimmo.de.
Wir freuen uns auf Sie!
Die gesetzlich vorgeschriebenen Verbraucherinformationen finden Sie hier...
Anbieter der Immobilie
Hannoversche Volksbank Immobilien GmbH
Kurt-Schumacher-Str. 15, 30159 Hannover
Online-ID: 2lesu5s
Referenznummer: 21-8837
Finde Angebote wie dieses
Hier geht es zu unserem Impressum, den Allgemeinen Geschäftsbedingungen, den Hinweisen zum Datenschutz und nutzungsbasierter Online-Werbung.