
immovario - Immobilien GmbH
Herr Fabian Strube
039 ···
Nr. anzeigenPreise & Kosten
Provision für Käufer
3,57% inkl. MwSt. zu zahlen vom Käufer!
Lage
Das Grundstück befindet sich im Wohngebiet "Wolfsfelde". Wolfsfelde ist eine zum Stadtteil Salbke gehörende Siedlung und liegt im äußersten Westen des Stadtteils an der Ottersleber und Sülldorfer Straße sowie im südlichen Teil der Beyendorfer Straße. Westlich grenzen die Stadtteile Hopfengarten und Beyendorfer Grund an. Die...
Die Immobilie
Zu diesem Angebot wurden vom Anbieter keine weiteren Daten hinterlegt. Für weitere Informationen bitte den Anbieter kontaktieren.
Nach Informationen fragenDetails
Objektbeschreibung
Willkommen in Ihrem zukünftigen Zuhause in Magdeburg, Stadtteil Wolfsfelde!
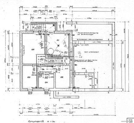
Das Grundstück ist noch mit einem stark sanierungsbedürftigem, voll unterkellertem Bungalow als Doppelhaushälfte und Garage bebaut.
Das komplette Grundstück umfasst ca. 961,00 m² und ist südwestlich ausgerichtet. Hier hat sich...
Ausstattung
EG/ Hochparterre:
- Vorbau/ Hauseingang
- Diele
- Küche
- Kinderzimmer 1
- Schlafzimmer
- Kinderzimmer 2
- Badezimmer
- Kellerzugang
- Wohnzimmer mit Essecke
- Terrasse/ Wintergarten
Keller:
- Raum 1
- Raum 2
- WC/ Dusche
- Raum 3
- Partyraum mit Tresen
-...
Preisinformation
1 Garagenstellplatz
Weitere Informationen
Sonstiges
Wir haben Ihr Interesse geweckt? Vereinbaren Sie noch heute einen Besichtigungstermin.
---
Ihnen gefällt, was Sie sehen, aber dieses Objekt ist leider nicht das richtige für Sie?
Kein Problem! Wir haben eine Auswahl an Objekten zur Miete oder zum Kauf für Sie in unserem Angebot - schauen Sie...
Anbieter der Immobilie
Online-ID: 2leve57
Referenznummer: mm1327
Finde Angebote wie dieses
Hier geht es zu unserem Impressum, den Allgemeinen Geschäftsbedingungen, den Hinweisen zum Datenschutz und nutzungsbasierter Online-Werbung.