
Müller Merkle Immobilien GmbH
Frau Karola Loucas
Kontaktiere den Anbieter schriftlich, es ist keine Telefonnummer hinterlegt.
Preise & Kosten
Kaution
4740
Warum sehe ich diese Anzeige? – Du siehst diese Anzeige basierend auf Ihrer Navigation auf unserer Website und den Suchkriterien, die du verwendet hast.
Lage
Hervorragend gelegen und ökologisch nachhaltig bebaut - Der DIAMALTPARK überzeugt in München-Allach als neues Stadtquartier mit besonderer Wohn- und Lebensqualität. Die innovative und weitläufige Bebauung, integrierte historische Gebäude und ein 10.000 m2 großer Park auf dem 8,5 ha großen Areal machen den DIAMALTPARK zur...
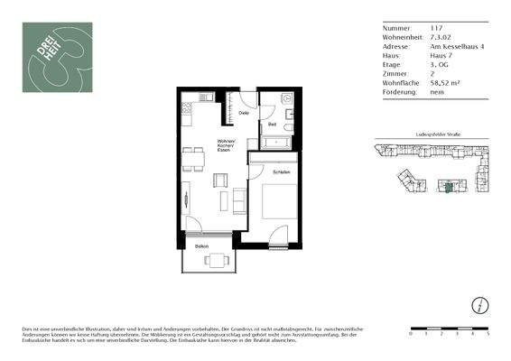
Die Wohnung
Wohnungslage
3. Geschoss
Bezug
ab sofort
Wohnanlage
Energie & Heizung
Warum sehe ich diese Anzeige? – Du siehst diese Anzeige basierend auf Ihrer Navigation auf unserer Website und den Suchkriterien, die du verwendet hast.
Energieausweistyp
Bedarfsausweis
Gebäudetyp
Wohngebäude
Baujahr laut Energieausweis
2021
Wesentliche Energieträger
Fernwärme
Gültigkeit
25.02.2021 bis 24.03.2031
Effizienzklasse
B
Endenergiebedarf
63,00 kWh/(m²·a)
Weitere Energiedaten
Energieträger
Fernwärme
Details
Objektbeschreibung
Die Wohnung ist Teil des Projekts DREIHEIT und liegt im Norden des Quartiers DIAMALTPARK. In dieser 2 Zimmer Wohnung finden Paare und anspruchsvolle Singles ein schickes Zuhause. Die smarte Grundrisslösung schafft ebenso Platz zum Ankommen und Abschalten, Gemeinsamkeit und Rückzug wie Raum zur individuellen Gestaltung...
Ausstattung
Alle Besonderheiten des DREHEIT auf einen Blick:
Echtholz-Parkettboden in den Wohnbereichen
Fußbodenheizung sowie ein zusätzlicher elektrischer Handtuchheizkörper im Bad
Spiegel mit Spiegelleuchte und randlose WC mit Absenkautomatik im Bad
Bodengleiche Duschen mit Glas-Trennwänden
Voll ausgestattete...
Preisinformation
1 Stellplatz, Miete: 106,00 EUR
Weitere Informationen
Sonstiges
Wir bitten Sie Terminanfragen über das Kontaktformular zu senden.
Bei den Bildern kann es sich um unverbindliche Visualisierungen und Bilder einer Musterwohnung handeln. Gerne können Sie sich im Zuge einer Besichtigung der Wohnung selbst vom DREIHEIT überzeugen.
HAFTUNGSAUSSCHLUSS:
Diese Anzeige...
Anbieter der Immobilie
Müller Merkle Immobilien GmbH
Galileistraße 1, 69115 Heidelberg
Frau Karola Loucas
Dein Ansprechpartner
Kontaktiere den Anbieter schriftlich, es ist keine Telefonnummer hinterlegt.
Online-ID: 2lexp5e
Referenznummer: M-DR-117#EpnLD
Finde Angebote wie dieses
Hier geht es zu unserem Impressum, den Allgemeinen Geschäftsbedingungen, den Hinweisen zum Datenschutz und nutzungsbasierter Online-Werbung.