
Wohlfühlmakler Immobilien GmbH
Herr Joe Einicke
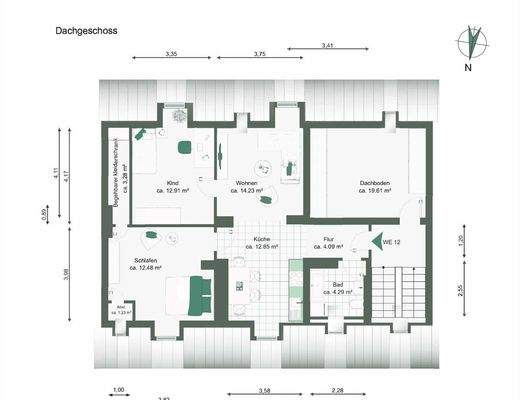
004 ···
Nr. anzeigenPreise & Kosten
Provision für Käufer
Die Käuferprovision beträgt 2,99 % inkl. 19 % MwSt. vom notariellen Kaufpreis
Lage
Stadtfeld-Ost gilt als eines der beliebtesten Wohnviertel Magdeburgs und verbindet auf besondere Weise urbanes Lebensgefühl mit historischem Charme.
Prächtige Gründerzeitfassaden, gesäumt von alten Bäumen, verleihen den Straßen eine einladende und lebendige Atmosphäre. Wer hier wohnt, profitiert von der unmittelbaren Nähe...
Die Wohnung
Wohnungslage
Erdgeschoss
Wohnanlage
Energie & Heizung
Warum sehe ich diese Anzeige? – Du siehst diese Anzeige basierend auf Ihrer Navigation auf unserer Website und den Suchkriterien, die du verwendet hast.
Energieausweistyp
Verbrauchsausweis
Gebäudetyp
Wohngebäude
Baujahr laut Energieausweis
2016
Wesentliche Energieträger
GAS
Gültigkeit
bis 10.07.2035
Effizienzklasse
D
Endenergieverbrauch
113,80 kWh/(m²·a)
Weitere Energiedaten
Energieträger
Gas
Heizungsart
Etagenheizung
Details
Objektbeschreibung
Diese charmante 3-Raumwohnung im beliebten Stadtfeld-Ost vereint den Charakter eines Altbaus mit dem Komfort modernen Wohnens. Das 1930 errichtete und 2010 kernsanierte Mehrfamilienhaus wurde liebevoll gepflegt, die Wohnung selbst 2016 umfassend modernisiert. So entstand ein Zuhause, das klassische Architektur und zeitgemäße...
Ausstattung
- exklusive Einbauküche
- Tageslichtbad mit großformatigen Fliesen und Badewanne
- indirektes Licht in Küche und Schlafzimmer
- Sonnenschutz in den Dachfenstern
- offener Wohn- und Kochbereich
Sanierungen/Modernisierungen:
- komplette Modernisierung der Wohnung 2016
- Etagenheizung
-...
Weitere Informationen
Sonstiges
Alle in diesem Exposé enthaltenen Informationen stammen vom Verkäufer. Die Angaben zum Objekt wurden mit größter Sorgfalt zusammengestellt. Eine Haftung für die Richtigkeit der Verkäufer-, Anbieter- oder Angebotsinformationen können wir jedoch nicht übernehmen. Änderungen und Irrtümer bleiben...
Anbieter der Immobilie
Wohlfühlmakler Immobilien GmbH
Elsterweg 2, 39110 Magdeburg
Online-ID: 2leyp5b
Referenznummer: JE-ETW-001
Finde Angebote wie dieses
Weitere Immobilien
Hier geht es zu unserem Impressum, den Allgemeinen Geschäftsbedingungen, den Hinweisen zum Datenschutz und nutzungsbasierter Online-Werbung.