

Mehrfamilienhaus zum Kauf494000 €1.486 €/m²10 Zimmer • 332,4 m² • 435 m² Grundstück
494000 €
1.486 €/m²
10 Zimmer • 332,4 m² • 435 m² Grundstück
Charmante Südstadtvilla mit zwei Wohneinheiten
Merkmale
- Bezug: sofort
- vermietet
- 435 m² Grundstück
- Einbauküche
- Keller
- 3 Stellplätze: 3 Außen-Stellplätze
- Gäste-WC
- Balkon
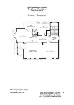
Grundrisse
Grundrisse
1 / 5
Realisiere Dein Projekt
Bausubstanz und Energie
Möchtest du Details zum Energieverbrauch?

- Baujahr1907
- Zustand der ImmobilieAltbau (bis 1945), Massivhaus, Gepflegt
- HeizungsartEtagenheizung
- EnergieträgerGas
Preisdetails
Kaufpreis
494000 €
1.486,29 €/m²
Provision für Käufer
3,57 % inkl. MwSt.
Weitere Preisinformationen
3 Stellplätze
Ist-Mieteinnahmen pro Jahr: 17.160,00 EUR
Ist-Mieteinnahmen pro Jahr: 17.160,00 EUR
Geschätzte Gesamtkosten
546.216 €1
Kaufpreis
494.000 €
Kaufnebenkosten
52.216 €
2Notarkosten (1,5%)
7.410 €
Grunderwerbsteuer (5%)
24.700 €
Provision für Käufer (3,57%)
17.636 €
Grundbucheintrag (0,5%)
2.470 €
1Der angezeigte Wert ist eine automatisch berechnete Schätzung von immowelt.
2Bei den Angaben handelt es sich um ortsübliche Werte. Individuelle Kosten können abweichen.
Lage

Eisenach (99817)
Der Anbieter hat die genaue Adresse nicht freigegeben
Weitere Informationen
Weitere Services
Lust auf eine Besichtigung?
Eine Frage zur Immobilie?
Über den Anbieter
Online-ID: 2583I8Q4CPFH
Referenznummer: 130825865#Jjo52t

Sommer Immobilien
Wie zufrieden bist du mit dieser Seite (nicht mit der Immobilie selbst)?

