

Sparkasse Hellweg-Lippe ImmobilienCenter
Herr Egbert Mester
+49 ···
Nr. anzeigenPreise & Kosten
Provision für Käufer
provisionsfrei
Lage
In nachgefragter Wohnlage
Im Soester Norden entsteht derzeit das größte Neubaugebiet der Stadt Soest.
Eine Mustersiedlung moderner Infrastruktur und ökologischer Wärmeversorgung.
Alle Dinge des täglichen Lebens sind gut zu erreichen
---
Soest, die Kreisstadt des gleichnamigen Kreises im...
Das Haus
Kategorie
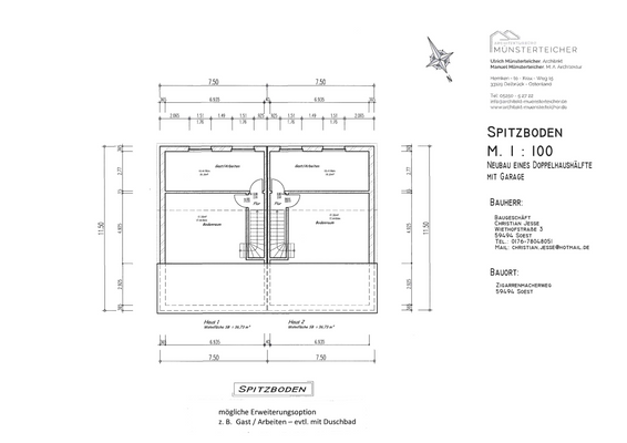
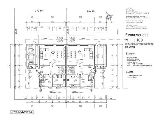
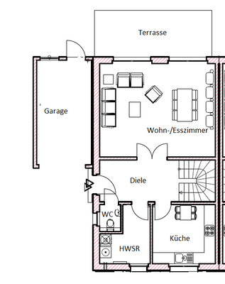
Doppelhaushälfte
Baujahr
2026
Energie & Heizung
Warum sehe ich diese Anzeige? – Du siehst diese Anzeige basierend auf Ihrer Navigation auf unserer Website und den Suchkriterien, die du verwendet hast.
Energieausweis: für diesen Gebäudetyp nicht notwendig
Weitere Energiedaten
Haustyp
KfW 55, Massivhaus
Energieträger
Fernwärme
Details
Objektbeschreibung
Im Soester - Norden besteht die Möglichkeit eine in der Planung befindliche Neubau - Doppelhaushälfte zu erwerben.
Je nach Bedarf und Planungsstand besteht evtl. noch die Möglichkeit die Größe und die Ausführung der Doppelhaushälfte entsprechend der eigenen Wohnvorstellung zu gestalten.
Das hier geplante...
Ausstattung
Individuelle Ausstattungsmerkmale:
- zweigeschossige Bauweise
- Ausbaureserve
- ebenes Grundstück
- Einstellplatz
- ca. 372 m² oder 357 m² Grundstück
- kein Erbpachtgrundstück
- massive zweigeschossige Bauweise
- ca. 134 m² Wfl.
im EG und OG
- bei Bedarf besteht die Möglichkeit
...
Weitere Informationen
Sonstiges
Bitte beachten Sie, dass wir bei Neukunden nur Kontaktanfragen mit vollständiger Angabe von Name, Anschrift und Telefonnummer bearbeiten. Andere Anfragen können wir aus rechtlichen Gründen leider nicht berücksichtigen.
Wir bitten um Ihr Verständnis
VERBRAUCHERINFO
1. Maklerleistung ist der Nachweis...
Anbieter der Immobilie
Sparkasse Hellweg-Lippe ImmobilienCenter
Spielplatzstraße 10, 59555 Lippstadt

Online-ID: 2lf7957
Referenznummer: 5293
Finde Angebote wie dieses
Hier geht es zu unserem Impressum, den Allgemeinen Geschäftsbedingungen, den Hinweisen zum Datenschutz und nutzungsbasierter Online-Werbung.