
EHL Gewerbeimmobilien GmbH
Herr Heinrich Resmann
+43 ···
Nr. anzeigenPreise & Kosten
Provision für Mieter
Bitte beachte, das Angebot kann bei Vertragsabschluss die Zahlung einer Provision beinhalten. Weitere Informationen erhältst Du vom Anbieter.
Warum sehe ich diese Anzeige? – Du siehst diese Anzeige basierend auf Ihrer Navigation auf unserer Website und den Suchkriterien, die du verwendet hast.
Lage
Verkehrsanbindung:
- U-Bahn: U4 Heiligenstadt; U4, U6 Spittelau
- S-Bahn: S45
- Buslinie: 35A
Büro-/Praxisfläche
Kategorie
Bürofläche
Energie & Heizung
Warum sehe ich diese Anzeige? – Du siehst diese Anzeige basierend auf Ihrer Navigation auf unserer Website und den Suchkriterien, die du verwendet hast.
Heizwärmebedarf (HWB)
60,20 kWh/(m²·a)
Details
Objektbeschreibung
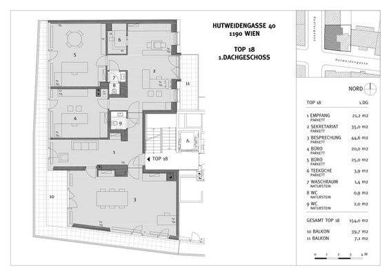
Das zur Vermarktung stehende alarmgesicherte Büro liegt im 1. DG eines modernen Wohnhauses Hutweidengasse/Rodlergasse und umfasst ca. 154m². Das Gebäude verfügt über einen sehr repräsentativen und gepflegten Eingangsbereich und eine Tiefgarage.
Das moderne und gut ausgestattete Büro verfügt über eine effiziente...
Ausstattung
- Parkettboden
- 2 WCs
- Klimatisierung
- Raumhohe Innentüren
- Küche
- Strukturierte EDV-Verkabelung
- Alarmanlage
- außenliegender Sonnenschutz
- großzügiges Kellerabteil
- barrierefrei
- ca. 47m² Balkon
Preisinformation
1 Garagenstellplatz, Miete: 150,00 EUR
Weitere Informationen
Sonstiges
Wir weisen darauf hin, dass zwischen dem Vermittler und dem Auftraggeber ein wirtschaftliches Naheverhältnis besteht. Der Vermittler ist als Doppelmakler tätig.
Stichworte
Garage vorhanden, Nutzfläche: 154,00 m², Bundesland: Wien
Anbieter der Immobilie
EHL Gewerbeimmobilien GmbH
Prinz-Eugen-Strasse 8-10, 1040 WIEN

Online-ID: 2lf8t5f
Referenznummer: 12122_2
Finde Angebote wie dieses
Hier geht es zu unserem Impressum, den Allgemeinen Geschäftsbedingungen, den Hinweisen zum Datenschutz und nutzungsbasierter Online-Werbung.