
Hansa Immobilien GmbH
Herr Ahmad Latif
004 ···
Nr. anzeigenPreise & Kosten
Provision für Käufer
3,57 % inkl. MwSt.
Lage
Das angebotene Einfamilienhaus befindet sich in der beliebten Gemeinde Dassendorf im Kreis Herzogtum Lauenburg, südöstlich von Hamburg. Der charmante Ort mit rund 3.200 Einwohnern ist eingebettet in eine grüne, naturnahe Umgebung und gilt aufgrund seiner Nähe zur Hansestadt als besonders attraktiver Wohnstandort für Familien...
Das Haus
Kategorie
Einfamilienhaus
Baujahr
2022
Bezug
ab Sofort
Energie & Heizung
Warum sehe ich diese Anzeige? – Du siehst diese Anzeige basierend auf Ihrer Navigation auf unserer Website und den Suchkriterien, die du verwendet hast.
Weitere Energiedaten
Energieträger
Elektro
Heizungsart
Fußbodenheizung
Details
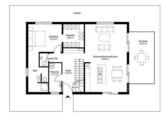
Objektbeschreibung
Dieses im Jahr 2022 errichtete Einfamilienhaus in Dassendorf vereint modernes Wohnen, hochwertige Ausstattung und eine flexible Grundrissgestaltung auf eindrucksvolle Weise. Mit einer Wohnfläche von ca. 169 m², verteilt auf vier großzügige Zimmer, bietet die Immobilie ideale Voraussetzungen für Paare und Familien, die Wert...
Ausstattung
- Wohnfläche ca. 169 m²
- Baujahr 2022
- Grundstücksanteil: ca. 398 m² zzgl. 32 m² Zufahrt
- 4 Zimmer, erweiterbar auf bis zu 6 Zimmer
- Marmorboden im römischen Verband im EG
- Hochwertige Einbauküche mit Siemens-Geräten und keramischer Arbeitsplatte
- EG-Schlafzimmer mit bodentiefen Fenstern, Ankleide und...
Weitere Informationen
Sonstiges
Alle Angaben sind ohne Gewähr und basieren ausschließlich auf Informationen, die uns von unserem Auftraggeber übermittelt wurden. Wir übernehmen keine Gewähr für die Vollständigkeit, Richtigkeit und Aktualität dieser Angaben. Zwischenverkauf vorbehalten.
Die Käuferprovision in Höhe von 3,57 % inkl. MwSt...
Anbieter der Immobilie
Online-ID: 2lfd45b
Referenznummer: 174
Finde Angebote wie dieses
Hier geht es zu unserem Impressum, den Allgemeinen Geschäftsbedingungen, den Hinweisen zum Datenschutz und nutzungsbasierter Online-Werbung.