

Lir Immobilien
Herr/Frau Toralf Lir
034 ···
Nr. anzeigenPreise & Kosten
Provision für Käufer
5,95% vom Kaufpreis
Das Haus
Kategorie
Einfamilienhaus
Baujahr
1965
Bezug
sofort
Details
Objektbeschreibung
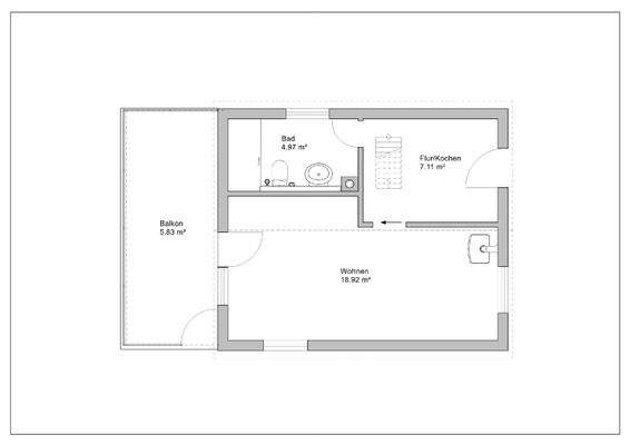
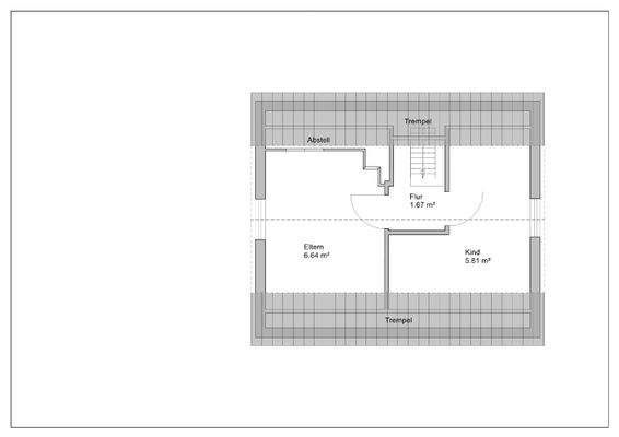
kleines charmantes Einfamilienhaus in ruhiger Lage von Leissling mit großem Grundstück
Dieses kleine, gemütliche Einfamilienhaus aus dem Jahr 1965 liegt idyllisch in Leissling - umgeben von viel Grün und einem eigenen Waldanteil. Auf ca. 51 m² Wohnfläche (nach Wohnflächenverordnung) bietet es eine Wohnstube mit...
Ausstattung
Einfamilienhaus mit Charme in ruhiger Lage von Leissling - ideal als Zweitwohnsitz
Ein Zuhause mit Herz - Leider wegen Pflegebedürftigkeit abzugeben.
Dieses Einfamilienhaus wartet darauf, mit neuem Leben gefüllt zu werden. Umgeben von viel Grün, einem eigenen Waldanteil und der Ruhe des charmanten Ortes Leissling...
Weitere Informationen
Stichworte
Carport vorhanden, Anzahl der Badezimmer: 1, Flur: 2, Lage in der Siedlung
Anbieter der Immobilie
Lir Immobilien
Große Kalandstr. 6, 06667 Weißenfels

Online-ID: 2lfef58
Referenznummer: LO25_35
Finde Angebote wie dieses
Hier geht es zu unserem Impressum, den Allgemeinen Geschäftsbedingungen, den Hinweisen zum Datenschutz und nutzungsbasierter Online-Werbung.