
Evernest GmbH
Jan Hitschler
+49 ···
Nr. anzeigenPreise & Kosten
Provision für Käufer
3.57 inkl. MwSt.
Bei Abschluss eines notariellen Kaufvertrages ist eine Käuferprovision vom Käufer in Höhe von 3.57 % inkl. MwSt. aus dem Kaufpreis fällig.
Lage
Die Immobilie befindet sich in zentraler Lage von Offenbach, welche durch eine hervorragende Infrastruktur, eine gute Anbindung an den öffentlichen Nahverkehr sowie die Nähe zu zahlreichen Einkaufsmöglichkeiten und Grünflächen.
In unmittelbarer Umgebung befinden sich Supermärkte, Apotheken, Ärzte, Restaurants und Cafés...
Die Wohnung
Wohnungslage
Erdgeschoss
Wohnanlage
Energie & Heizung
Warum sehe ich diese Anzeige? – Du siehst diese Anzeige basierend auf Ihrer Navigation auf unserer Website und den Suchkriterien, die du verwendet hast.
Energieausweistyp
Verbrauchsausweis
Gebäudetyp
Wohngebäude
Effizienzklasse
C
Endenergieverbrauch
92,30 kWh/(m²·a) - Warmwasser enthalten
Weitere Energiedaten
Energieträger
Gas
Details
Objektbeschreibung
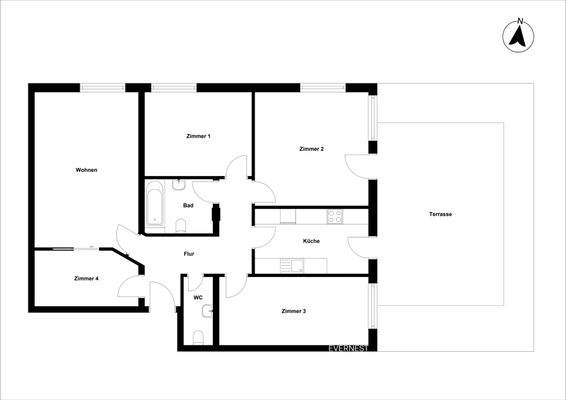
Diese 5-Zimmer-Wohnung mit ca. 107 m² Wohnfläche befindet sich im Erdgeschoss eines 2005 erbauten Mehrfamilienhauses in Offenbach am Main. Die zentrale Lage bietet kurze Wege zu allen Annehmlichkeiten der Stadt, während die rückwärtige Ausrichtung angenehme Ruhe fernab der Straße gewährleistet.
Ursprünglich als...
Ausstattung
- Barrierefrei
- Fußbodenheizung
- Hohe Decken
- Fahrstuhl
- Große Terrasse mit Grünflächen
- Leerstehend
- Tiefgaragenstellplatz
- Energieeffizienzklasse C
- Hausgeld 687 €
Weitere Informationen
Stichworte
Tiefgarage vorhanden, Anzahl der Schlafzimmer: 3, Anzahl der Badezimmer: 1, Anzahl der separaten WCs: 1, Anzahl Terrassen: 1
Anbieter der Immobilie
Online-ID: 2lfer5d
Referenznummer: L-QGTGJGF
Finde Angebote wie dieses
Weitere Immobilien
Hier geht es zu unserem Impressum, den Allgemeinen Geschäftsbedingungen, den Hinweisen zum Datenschutz und nutzungsbasierter Online-Werbung.