
Capital-Real GmbH & Co.KG
Frau Nadine Röver
004 ···
Nr. anzeigenPreise & Kosten
Provision für Käufer
provisionsfrei
Lage
Das Objekt befindet sich an der Tonkuhle 4 in 26131 Oldenburg und liegt somit in dem Oldenburger Stadtteil Eversten.
Die Einkaufsmöglichkeiten und Geschäfte für den alltäglichen Gebrauch befinden sich in der Nähe des Objektes. Diese sind sowohl fußläufig als auch mit dem Auto innerhalb von ungefähr 5 Minuten schnell zu...
Das Haus
Kategorie
Einfamilienhaus
Baujahr
2023
Bezug
sofort
Energie & Heizung
Warum sehe ich diese Anzeige? – Du siehst diese Anzeige basierend auf Ihrer Navigation auf unserer Website und den Suchkriterien, die du verwendet hast.
Energieausweistyp
Bedarfsausweis
Gebäudetyp
Wohngebäude
Baujahr laut Energieausweis
2023
Wesentliche Energieträger
LUFTWP
Gültigkeit
bis 28.07.2035
Effizienzklasse
A+
Endenergiebedarf
12,80 kWh/(m²·a)
Weitere Energiedaten
Heizungsart
Fußbodenheizung, Luft-/Wasser-Wärmepumpe
Details
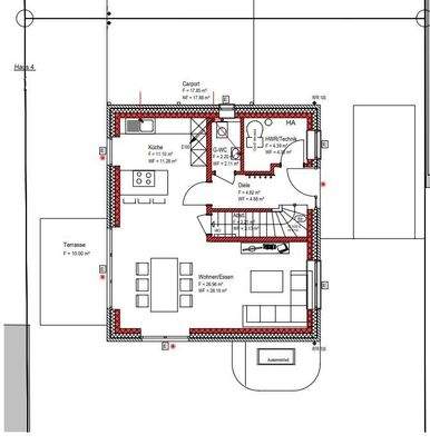
Objektbeschreibung
Willkommen in diesem attraktiven Einfamilienhaus, das sich direkt an der Tonkuhle befindet.
Mit einer großzügigen Wohnfläche von etwa 138 m² erstreckt sich das Haus über drei Etagen und bietet Ihnen viel Platz für individuelle Gestaltung.
Im Eingangsbereich erwarten Sie ein praktisches Gäste-WC sowie ein...
Ausstattung
+ Luft Wasser Wärmepumpe
+ PV Anlage
+ elektrische Rollläden
+ Fußbodenheizung
+ Carport
+ KfN (Klimafreundlicher Neubau)
+ direkte Nähe zur Tonkuhle
Preisinformation
1 Carportplatz
Weitere Informationen
Sonstiges
Unsere Immobilienangebote verstehen sich freibleibend und unverbindlich. Zwischenvermittlung ausdrücklich vorbehalten. Die Angaben zum Objekt basieren auf erteilten Informationen Dritter. Für die Richtigkeit und Vollständigkeit kann deshalb keine Haftung übernommen werden.
Wir können Anfragen nur mit...
Anbieter der Immobilie
Capital-Real GmbH & Co.KG
Donnerschweer Str. 325 , 26123 Oldenburg
Online-ID: 2lfg85z
Referenznummer: CR-333_4
Finde Angebote wie dieses
Hier geht es zu unserem Impressum, den Allgemeinen Geschäftsbedingungen, den Hinweisen zum Datenschutz und nutzungsbasierter Online-Werbung.