
Garant Immobilien Heilbronn GmbH
Büro Würzburg
093 ···
Nr. anzeigenPreise & Kosten
Provision für Käufer
3,57 % (inkl. MwSt.) inkl. MwSt.
Die Maklercourtage für den Käufer beträgt 3 % aus dem Kaufpreis zuzüglich der gesetzlichen MwSt., somit gesamt 3,57 %.
Lage
Das Haus befindet sich in einer ruhigen, familienfreundlichen Wohngegend, die von einer angenehmen Nachbarschaft geprägt ist. Die Lage ist verkehrsberuhigt und bietet eine hohe Lebensqualität. In unmittelbarer Nähe finden Sie zahlreiche Grünflächen, Spielplätze und Freizeitmöglichkeiten, die zur Erholung und Entspannung...
Das Haus
Kategorie
Einfamilienhaus
Baujahr
1959
Bezug
nach Absprache
Energie & Heizung
Warum sehe ich diese Anzeige? – Du siehst diese Anzeige basierend auf Ihrer Navigation auf unserer Website und den Suchkriterien, die du verwendet hast.
Energieausweistyp
Bedarfsausweis
Gebäudetyp
Wohngebäude
Baujahr laut Energieausweis
1956
Wesentliche Energieträger
Gas
Gültigkeit
seit 07.05.2025
Effizienzklasse
H
Endenergiebedarf
325,07 kWh/(m²·a)
Weitere Energiedaten
Energieträger
Gas
Details
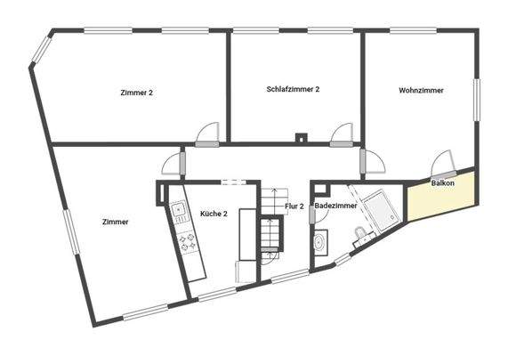
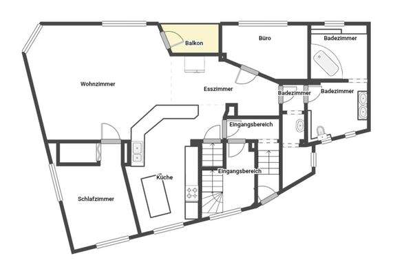
Objektbeschreibung
Willkommen in Ihrem neuen Zuhause! Dieses charmante Einfamilienhaus bietet nicht nur eine gemütliche Wohnatmosphäre, sondern auch ein hervorragendes Ausbaupotential im Dachgeschoss. Ideal für Familien, die auf der Suche nach einem Platz mit Raum für individuelle Gestaltung sind.
Die Fakten auf einem Blick:
-...
Weitere Informationen
Sonstiges
Energiebedarfsausweis
Energiekennwert: 325,07 kWh/(qm*a)
Energieeffizienz: Klasse H (>250)
Heizung: Gas-Heizung mit Gas
Baujahr laut Energieausweis: 1956
Heizung wurde 2021 von Öl auf Gas umgestellt.
Wasserleitungen in gutem Zustand.
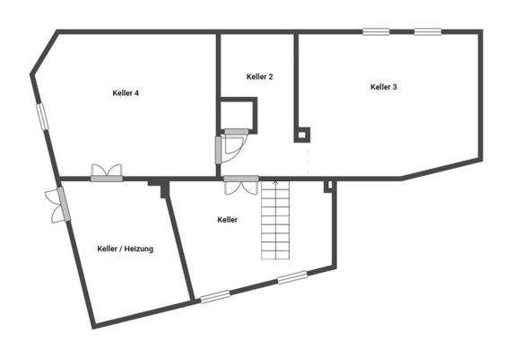
Keller mit Drainagen.
Stichworte
Anzahl...
Anbieter der Immobilie
Online-ID: 2lfgt5e
Referenznummer: 638.001
Finde Angebote wie dieses
Hier geht es zu unserem Impressum, den Allgemeinen Geschäftsbedingungen, den Hinweisen zum Datenschutz und nutzungsbasierter Online-Werbung.