

Kompass Immobilien Ratisbona
Frau Sonja Mündner
+49 ···
Nr. anzeigenPreise & Kosten
Provision für Käufer
provisionsfrei
Lage
Pentling ist eine Gemeinde im Oberpfälzer Landkreis Regensburg in Bayern. Die Wohngemeinde ist eine Stadtrandgemeinde südwestlich von Regensburg. Das Neubauvorhaben befindet sich im Ortsteil Großberg.
Es besteht eine hervorragende Anbindung an die öffentlichen Verkehrsmittel. Es gibt Rad- und Wanderwege, sowie...
Die Wohnung
Kategorie
Penthouse
Wohnungslage
3. Geschoss
Bezug
Ende 2026
Wohnanlage
Energie & Heizung
Warum sehe ich diese Anzeige? – Du siehst diese Anzeige basierend auf Ihrer Navigation auf unserer Website und den Suchkriterien, die du verwendet hast.
Weitere Energiedaten
Energieträger
Pellets
Heizungsart
Fußbodenheizung
Details
Objektbeschreibung
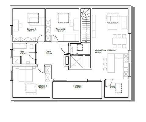
Die 4-Zimmer-Penthousewohnung befindet sich in einem Mehrfamilienhaus mit Tiefgarage und Keller, welches als KfW Effizienzhaus 40/QNG und in hochwertiger, solider Massivbauweise erstellt wird.
Sie betreten die Wohnung in der Diele. Geradeaus gelangen Sie in das Tageslichtbad mit Badewanne, begehbare Dusche, Toilette...
Ausstattung
- Massiv-Ziegelbauweise KfW 55-Energie-Effizienz-Standard
- Kunststoff-Fenster 3-fach verglast
- elektrische Rollos an allen Fenstern (mit Ausnahme von je einem Rettungsfenster in jeder Einheit)
- dezentrale Einzelraumlüfter über den Rollokästen oder in der Fensterlaibung
- Heizung = Pelletheizung
-...
Preisinformation
1 Stellplatz, Kaufpreis: 9.000,00 EUR
1 Garagenstellplatz, Kaufpreis: 25.000,00 EUR
Weitere Informationen
Stichworte
Tiefgarage vorhanden, Stellplatz vorhanden, Anzahl der Schlafzimmer: 3, Anzahl der Badezimmer: 1, 3 Etagen
Anbieter der Immobilie

Online-ID: 2lfkn5j
Referenznummer: 5907#p7AsFh
Finde Angebote wie dieses
Hier geht es zu unserem Impressum, den Allgemeinen Geschäftsbedingungen, den Hinweisen zum Datenschutz und nutzungsbasierter Online-Werbung.