
RUHR REAL GmbH
Herr Felix Ludwig
+49 ···
Nr. anzeigenPreise & Kosten
Provision für Mieter
3-4 Nettomonatsmieten
Bei Verträgen bis zu fünf Jahren Laufzeit ist ein Honorar von 3 Nettomonatsmieten vom Mieter an RUHR REAL zahlbar; bei Laufzeiten bis zu zehn Jahren werden 4 Nettomonatsmieten fällig. Hinzu kommt die jeweils gültige Umsatzsteuer.
Warum sehe ich diese Anzeige? – Du siehst diese Anzeige basierend auf Ihrer Navigation auf unserer Website und den Suchkriterien, die du verwendet hast.
Lage
Die Lage befindet sich in einem gut angebundenen Stadtteil im Kölner Süden mit einer Mischung aus Wohn- und Geschäftsnutzung. Haltestellen des öffentlichen Nahverkehrs sind in wenigen Gehminuten erreichbar und bieten direkte Verbindungen in die Innenstadt sowie zu weiteren Stadtteilen. Gastronomische Angebote wie Cafés...
Büro-/Praxisfläche
Kategorie
Bürofläche
Bezug
sofort verfügbar
Details
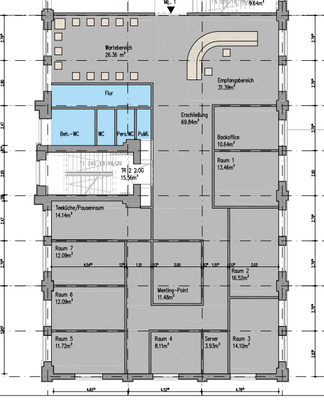
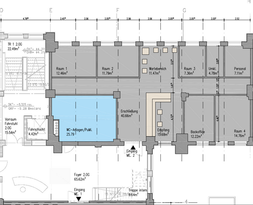
Objektbeschreibung
Die moderne Schulungsfläche auf dem ehemaligen Möller-Glöckner-Gelände überzeugt durch eine funktionale Ausstattung: PVC-Boden, CAT-7-Verkabelung, Fensterbankkabelkanäle und eine Lüftungsanlage mit Nachklimatisierung. Ein manueller Blendschutz sorgt für angenehme Lichtverhältnisse.
Barrierefreiheit ist durch ein...
Ausstattung
. Cafeteria vorhanden
. PVC-Boden
. Sanitäranlagen
. barrierefreies WC
. Kellerfläche vorhanden
Preisinformation
Nettokaltmiete: 13,50 EUR
Weitere Informationen
Sonstiges
Es gelten ausschließlich unsere AGB (www.ruhr-real.de/agb). Die Halle ist nicht für Veranstaltungsräume geeignet. Wir möchten Sie darauf hinweisen, dass die Angaben ausschließlich auf den uns vom Eigentümer übermittelten Unterlagen und Informationen basieren. Für Richtigkeit und Vollständigkeit übernehmen wir...
Anbieter der Immobilie

RUHR REAL GmbH
Holsterhauser Platz 2, 45147 Essen
Online-ID: 2lflg5y
Referenznummer: 4322/G1/E6
Finde Angebote wie dieses
Hier geht es zu unserem Impressum, den Allgemeinen Geschäftsbedingungen, den Hinweisen zum Datenschutz und nutzungsbasierter Online-Werbung.