
Wertimmobilien Consulting KG
Herr Harald Hochmann
+43 ···
Nr. anzeigenPreise & Kosten
Provision für Käufer
Bitte beachte, das Angebot kann bei Vertragsabschluss die Zahlung einer Provision beinhalten. Weitere Informationen erhältst Du vom Anbieter.
Lage
Nahe Neufeldersee und Bauernsee
Die Wohnung
Kategorie
Terrassenwohnung
Bezug
sofort
Wohnanlage
Energie & Heizung
Warum sehe ich diese Anzeige? – Du siehst diese Anzeige basierend auf Ihrer Navigation auf unserer Website und den Suchkriterien, die du verwendet hast.
Heizwärmebedarf (HWB)
27,00 kWh/(m²·a)
Gesamtenergieeffizienz (fGEE)
0,71
Weitere Energiedaten
Energieträger
Pellets
Heizungsart
Fußbodenheizung, Zentralheizung
Details
Objektbeschreibung
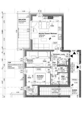
Schöne 3 ZIMMER WOHNUNG MIT BALKON & 2 PKW STELLPLÄTZEN NÄHE NEUFELDER SEE
Video für eine virtuelle Kurzbesichtigung:
Hier klicken zum Video [https://www.youtube.com/watch?v=iPjbnswNBRM] oder https://www.youtube.com/watch?v=iPjbnswNBRM
Neufeld an der Leitha ist eine bezaubernde...
Preisinformation
2 Stellplätze, Miete je: 12,80 EUR
Weitere Informationen
Stichworte
Stellplatz vorhanden, Süd-West-Balkon/Terrasse, Fahrradraum, Rolladen, Anzahl der Badezimmer: 1, Anzahl der separaten WCs: 1, Anzahl Balkone: 1, Balkon-Terrassen-Fläche: 11,31 m², Kellerfläche: 4,84 m², Bundesland: Burgenland, 1 Etagen, Wohnungsnr.: 6
Anbieter der Immobilie
Wertimmobilien Consulting KG
Schottenring 16, 1010 WIEN
Online-ID: 2lfma5l
Referenznummer: OBGC20250922120153489f1dc8c1a62
Finde Angebote wie dieses
Günstige Immobilienfinanzierung einfach online berechnen
Persönliches Angebot berechnenWarum sehe ich diese Werbung? – Du siehst diese Werbung basierend auf Deiner Navigation auf unserer Website und der von Dir verwendeten Suchkriterien.
Diese Werbung wird bezahlt von durchblicker
Werbung melden
Hier geht es zu unserem Impressum, den Allgemeinen Geschäftsbedingungen, den Hinweisen zum Datenschutz und nutzungsbasierter Online-Werbung.