
EHL Immobilien GmbH
Frau Andrea PÖCHHACKER; MSc
+43 ···
Nr. anzeigenPreise & Kosten
Provision für Käufer
Provisionsfrei für den Käufer
Die Wohnung
Wohnungslage
Erdgeschoss
Bezug
1. Quartal 2026
Wohnanlage
Energie & Heizung
Warum sehe ich diese Anzeige? – Du siehst diese Anzeige basierend auf Ihrer Navigation auf unserer Website und den Suchkriterien, die du verwendet hast.
Heizwärmebedarf (HWB)
58,10 kWh/(m²·a)
Gesamtenergieeffizienz (fGEE)
0,91
Weitere Energiedaten
Heizungsart
Fußbodenheizung, Luft-/Wasser-Wärmepumpe
Details
Objektbeschreibung
Zuhause in Hawei - Ihr exklusives Investment zwischen Natur und Stadtleben!
In Hadersdorf-Weidlingau, dem familienfreundlichen 14. Wiener Gemeindebezirk, entsteht in der Mauerbachstraße, 1140 Wien, ein einzigartiges Wohnbauprojekt mit 13 hochwertig ausgestatteten Eigentums- und Vorsorgewohnungen zwischen 81 m² und 137...
Weitere Informationen
Stichworte
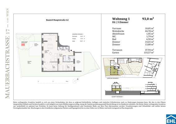
Nord-Ost-Ost-Süd-Balkon/Terrasse, Rolladen, Anzahl der Badezimmer: 1, Anzahl der separaten WCs: 1, Anzahl Terrassen: 1, Balkon-Terrassen-Fläche: 37,94 m², Gartenfläche: 133,57 m², Bundesland: Wien, 5 Etagen, Wohnungsnr.: 1
Dokumente
Anbieter der Immobilie
EHL Immobilien GmbH
Prinz-Eugen-Straße 8-10, 1040 WIEN
Online-ID: 2lfmr5f
Referenznummer: OBGC20241015095719889e849863871
Finde Angebote wie dieses
Günstige Immobilienfinanzierung einfach online berechnen
Persönliches Angebot berechnenWarum sehe ich diese Werbung? – Du siehst diese Werbung basierend auf Deiner Navigation auf unserer Website und der von Dir verwendeten Suchkriterien.
Diese Werbung wird bezahlt von durchblicker
Werbung melden
Hier geht es zu unserem Impressum, den Allgemeinen Geschäftsbedingungen, den Hinweisen zum Datenschutz und nutzungsbasierter Online-Werbung.