
Böchzelt Immobilien Immobilienverwaltung Immobilienmakler GmbH
Milchberger
004 ···
Nr. anzeigenPreise & Kosten
Provision für Käufer
3% des Kaufpreises zzgl. 20% USt.
Lage
Die Liegenschaft liegt direkt an der viel befahrenen Hauptstraße in Zeltweg. In unmittelbarer Nähe befinden sich verschiedenste Geschäfte wie Gastronomie, Handel, Dienstleistungen etc. Direkt vor der Haustüre befindet sich eine Bushaltestation und der Bahnhof ist über eine Verbindungsbrücke in ca. 2 Gehminuten zu erreichen...
Das Renditeobjekt
Kategorie
Wohn- und Geschäftshaus
Baujahr
1953
Bezug
sofort
Energie & Heizung
Warum sehe ich diese Anzeige? – Du siehst diese Anzeige basierend auf Ihrer Navigation auf unserer Website und den Suchkriterien, die du verwendet hast.
Heizwärmebedarf (HWB)
251,00 kWh/(m²·a)
Gesamtenergieeffizienz (fGEE)
3,15
Weitere Energiedaten
Energieträger
Elektro, Fernwärme, Gas, Öl
Heizungsart
offener Kamin, Zentralheizung
Details
Objektbeschreibung
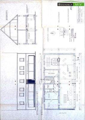
Zum Verkauf gelangt ein gepflegtes Wohn- und Geschäftshaus an der Hauptstraße in Zeltweg in Nähe zum Bahnhof und dem Steirerschlössl. Das Hauptgebäude verfügt über ein Kellergeschoss, Erdgeschoss, 1. Obergeschoss, sowie einem Dachgeschoss. Überdies ist auf der Liegenschaft noch ein Garagengebäude mit zwei Einzelgaragen, sowie...
Preisinformation
5 Stellplätze
5 Garagenstellplätze
Weitere Informationen
Stichworte
Carport vorhanden, Stellplatz vorhanden, Garage vorhanden, Wohnfläche: 333,83 m², Lagerfläche: 169,46 m², Nutzfläche: 1.005,45 m², Gesamtfläche: 1.005,45 m², Verkaufsfläche: 181,74 m², Anzahl Balkone: 1, Balkon-Terrassen-Fläche: 2,00 m², Kellerfläche: 184,88 m², Bundesland: Steiermark, 4 Etagen
Anbieter der Immobilie
Böchzelt Immobilien Immobilienverwaltung Immobilienmakler GmbH
Schmittstr 17, 8720 Knittelfeld
Online-ID: 2lfr65f
Referenznummer: OBGC202311091520240972a3cbcff04
Finde Angebote wie dieses
Günstige Immobilienfinanzierung einfach online berechnen
Persönliches Angebot berechnenWarum sehe ich diese Werbung? – Du siehst diese Werbung basierend auf Deiner Navigation auf unserer Website und der von Dir verwendeten Suchkriterien.
Diese Werbung wird bezahlt von durchblicker
Werbung melden
Hier geht es zu unserem Impressum, den Allgemeinen Geschäftsbedingungen, den Hinweisen zum Datenschutz und nutzungsbasierter Online-Werbung.