

CE Hausbau GmbH
Herr Torsten Rieper
058 ···
Nr. anzeigenPreise & Kosten
Provision für Käufer
provisionsfrei
Lage
Lage und Erreichbarkeit:
Handeloh, ein charmantes Dorf im Landkreis Harburg, Niedersachsen, liegt in der malerischen Lüneburger Heide und bietet eine perfekte Kombination aus naturnahem Wohnen und guter Anbindung an städtische Infrastruktur. Das 1600 m² Gemeinschaftsgrundstück liegt in einer schönen ruhigen Wohngegend. Die...
Das Haus
Kategorie
Mehrfamilienhaus
Baujahr
2026
Energie & Heizung
Warum sehe ich diese Anzeige? – Du siehst diese Anzeige basierend auf Ihrer Navigation auf unserer Website und den Suchkriterien, die du verwendet hast.
Weitere Energiedaten
Energieträger
Elektro
Heizungsart
Fußbodenheizung
Details
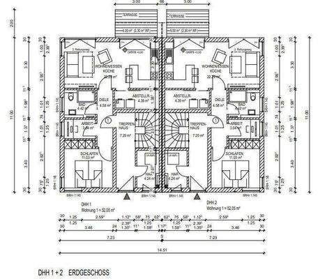
Objektbeschreibung
Werden Sie Ihr eigener Vermieter in einer bewohnergetragenen Genossenschaft! Wir bauen 2 Doppelhäuser mit je 4 Wohnungen im Grünen und in ruhiger Lage in Handeloh.
Als Mitglied und Mieter der bewohnergetragenen Genossenschaft nutzen Sie genossenschaftliches Eigentum, an dem Sie selbst beteiligt sind. Insofern stellt...
Ausstattung
Vollausstattung inklusive
. Wärmepumpe: Heute bereits an Morgen denken - in jedem Haus ist eine Wärmepumpe inklusive. Sie erfüllen die aktuellen
Energiestandards, sparen bares Geld und reduzieren Ihren CO2-Fußabdruck.
. Massiv gebaut und gedämmt: Wir setzen auf massives Mauerwerk. Das schont nicht nur Ressourcen...
Weitere Informationen
Sonstiges
Als Town & Country Lizenzpartner betreuen wir die bewohnergetragene Wohnungsbaugenossenschaft "in Gründung" mit unserem baufachlichen Know-How und unserer Expertise im Projektmanagement vor Ort in Handeloh In der Genossenschaft finden Sie noch preiswerten Wohnraum. Durch den Erwerb der Genossenschaftsanteile...
Anbieter der Immobilie
CE Hausbau GmbH
Gewerbestrasse 2, 38550 Isenbüttel

Online-ID: 2lfvk5m
Referenznummer: 48
Finde Angebote wie dieses
Hier geht es zu unserem Impressum, den Allgemeinen Geschäftsbedingungen, den Hinweisen zum Datenschutz und nutzungsbasierter Online-Werbung.