
Viefhaus Immobilien
Herr Sebastian Viefhaus
093 ···
Nr. anzeigenPreise & Kosten
Kaution
2.760,00
Provision für Mieter
3 Nettokaltmieten zzgl. MwSt. für den Mieter
Warum sehe ich diese Anzeige? – Du siehst diese Anzeige basierend auf Ihrer Navigation auf unserer Website und den Suchkriterien, die du verwendet hast.
Lage
Das Gewerbegebiet Veitshöchheimer Straße liegt im nördlichen Stadtbereich von Würzburg und zählt zu den etablierten und vielseitig genutzten Gewerbestandorten der Stadt. Es überzeugt durch seine zentrale Lage und hervorragende verkehrstechnische Anbindung, die eine ideale Erreichbarkeit...
Die Immobilie
Zu diesem Angebot wurden vom Anbieter keine weiteren Daten hinterlegt. Für weitere Informationen bitte den Anbieter kontaktieren.
Nach Informationen fragenEnergie & Heizung
Warum sehe ich diese Anzeige? – Du siehst diese Anzeige basierend auf Ihrer Navigation auf unserer Website und den Suchkriterien, die du verwendet hast.
Weitere Energiedaten
Heizungsart
Zentralheizung
Details
Objektbeschreibung
ENERGIEAUSWEIS
Der Energieausweis liegt seitens des Anbieters noch nicht vor.
---------------
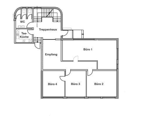
Helle Büroräume im Erdgeschoß eines Bürohauses:
4 geräumige Einzelbüros
Serverraum
Teeküche (zur Mietbenutzung mit einer 2. Büroeinheit)
WC (zur Mietbenutzung mit einer 2...
Ausstattung
Die Bürofläche wurde in den letzten Jahren komplett kernsaniert:
* neue Fenster
* neue Böden (Vinylboden)
* neue Elektro- und DV-Verkabelun
+ neue Toiletten
* neue Heizung und Klimatisierung
Preisinformation
Nettokaltmiete: 1380,-EUR zzgl. MwSt.
NK: 220,-EUR zzgl. MwSt.
Kaution (2 Nettokaltmieten): 2760,-EUR
Weitere Informationen
Sonstiges
Der Energieausweis wird momentan erstellt und nachgereicht.
Für weitere Auskünfte und zur Absprache eines Besichtigungstermins stehen wir Ihnen gerne zur Verfügung.
Viele weitere gewerbliche Immobilien im Angebot:
Büros von 50m² - 4000m² im Stadtgebiet Würzburg und den...
Anbieter der Immobilie
Viefhaus Immobilien
Fichtestraße 10, 97074 Würzburg
Online-ID: 2lfw95y
Referenznummer: GM560
Finde Angebote wie dieses
Hier geht es zu unserem Impressum, den Allgemeinen Geschäftsbedingungen, den Hinweisen zum Datenschutz und nutzungsbasierter Online-Werbung.