
Weinhardt Immobilien
Frau Jennifer Tekin
004 ···
Nr. anzeigenPreise & Kosten
Provision für Mieter
1.0 Netto - Monatsmiete
Warum sehe ich diese Anzeige? – Du siehst diese Anzeige basierend auf Ihrer Navigation auf unserer Website und den Suchkriterien, die du verwendet hast.
Lage
Die Gewerbefläche befindet sich in der Düneberger Straße 130 in Geesthacht, einem zentralen Standort mit ausgezeichneter Anbindung. Geesthacht, südöstlich von Hamburg gelegen, profitiert von seiner Nähe zur Metropolregion Hamburg und bietet damit hervorragende Erreichbarkeit sowohl für regionale als auch überregionale Kunden...
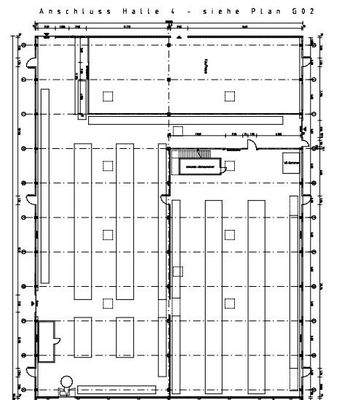
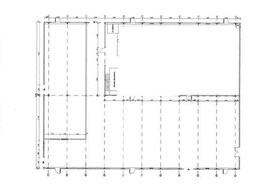
Die Industriefläche
Kategorie
Lagerhalle
Bezug
sofort
Details
Objektbeschreibung
Die angebotene Gewerbefläche umfasst eine großzügige, zum Teil beheitzbare Lagerhalle mit einer Fläche von 2000 m² und bietet ideale Voraussetzungen für vielfältige Nutzungsmöglichkeiten im gewerblichen Bereich.
Die Halle ist in einem gepflegten Zustand und verfügt über eine moderne Ausstattung, die effiziente...
Weitere Informationen
Stichworte
Lagerfläche: 2.000,00 m², Gesamtfläche: 2.000,00 m²
Anbieter der Immobilie
Online-ID: 2lfwt5q
Referenznummer: 2295
Finde Angebote wie dieses
Hier geht es zu unserem Impressum, den Allgemeinen Geschäftsbedingungen, den Hinweisen zum Datenschutz und nutzungsbasierter Online-Werbung.