
Rimo | Immobilien GmbH
Herr Daniel Marte
+43 ···
Nr. anzeigenPreise & Kosten
Provision für Käufer
3% des Kaufpreises zzgl. 20% USt.
Lage
In sonniger Hanglage von St. Gallenkirch, einem der beliebtesten Ferienorte im Montafon, verbindet das Berg-Refugium Tanafreida 4* Ruhe, Natur und gute Erreichbarkeit. Nur wenige Minuten von den Silvretta-Montafon-Bergbahnen entfernt, genießen Gäste sowohl im Winter wie auch im Sommer ein breites Spektrum an...
Gastronomie/Hotel
Kategorie
Hotel
Baujahr
1973
Energie & Heizung
Warum sehe ich diese Anzeige? – Du siehst diese Anzeige basierend auf Ihrer Navigation auf unserer Website und den Suchkriterien, die du verwendet hast.
Heizwärmebedarf (HWB)
68,00 kWh/(m²·a)
Gesamtenergieeffizienz (fGEE)
0,97
Weitere Energiedaten
Energieträger
Holz, Öl
Heizungsart
Fußbodenheizung, offener Kamin
Details
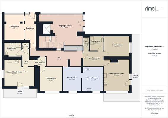
Objektbeschreibung
Das Objekt - Fakten & Highlights
Tanafreida Berg-Refugium 4* - Ihr Investment mit Geschichte & Zukunft
* 8 moderne Appartements (Generalsanierung 2019)
Größen zw.: ca. 37-80 m² - geeignet für 1 bis 6 Personen
* Wellnessbereich: Sauna, Ruheraum, Duschen, Yoga & Naturidylle auf der...
Preisinformation
6 Stellplätze
1 Garagenstellplatz
Weitere Informationen
Sonstiges
Homepage - https://www.tanafreida.at/
Stichworte
Stellplatz vorhanden, Ost-Süd-West-Balkon/Terrasse, Fahrradraum, Nutzfläche: 759,60 m², Anzahl der Badezimmer: 11, Anzahl der separaten WCs: 12, Anzahl Balkone: 9, Anzahl Terrassen: 1, Balkon-Terrassen-Fläche: 125,16 m², Kellerfläche: 86,27 m²...
Dokumente
Anbieter der Immobilie
Online-ID: 2lfyg57
Referenznummer: OBGC202507211121228577b006e31d5
Finde Angebote wie dieses
Hier geht es zu unserem Impressum, den Allgemeinen Geschäftsbedingungen, den Hinweisen zum Datenschutz und nutzungsbasierter Online-Werbung.