
FECHNER IMMOBILIEN
Herr Daniel Fechner
004 ···
Nr. anzeigenPreise & Kosten
Provision für Käufer
provisionsfrei
Lage
Das Zweifamilienhaus befindet sich in der Gemeinde Adelschlag im oberbayerischen Landkreis Eichstätt. Die Immobilie liegt in einem ruhigen Wohngebiet mit überwiegend Ein- und Zweifamilienhäusern. Die Umgebung ist geprägt von einer ländlichen Struktur mit guter Anbindung an die umliegenden Städte.
Adelschlag verfügt...
Das Haus
Kategorie
Mehrfamilienhaus
Baujahr
1962
Bezug
nach Absprache
Energie & Heizung
Warum sehe ich diese Anzeige? – Du siehst diese Anzeige basierend auf Ihrer Navigation auf unserer Website und den Suchkriterien, die du verwendet hast.
Energieausweistyp
Bedarfsausweis
Gebäudetyp
Wohngebäude
Baujahr laut Energieausweis
1962
Wesentliche Energieträger
OEL
Gültigkeit
bis 07.09.2033
Effizienzklasse
H
Endenergiebedarf
362,80 kWh/(m²·a)
Weitere Energiedaten
Haustyp
Massivhaus
Energieträger
Öl
Heizungsart
Zentralheizung
Details
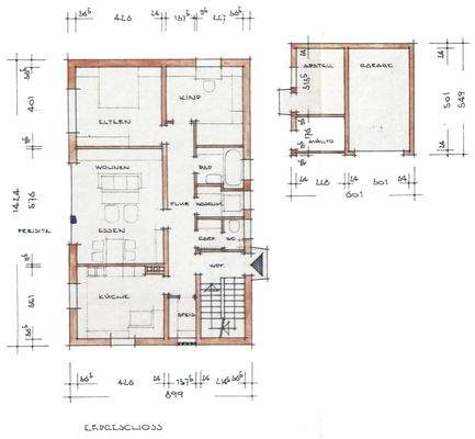
Objektbeschreibung
Verkauft wird ein Zweifamilienhaus auf einem 1.798m² großen Grundstück in Adelschlag! Das im Jahr 1962 in Massivbauweise errichtete Gebäude ist voll unterkellert und bietet bequem Platz für 1 - 2 Familien.
+ Es erwarten Sie circa 200,74m² Wohnfläche - verteilt auf eine 3-Zimmer-Wohnung im Erdgeschoss und eine...
Ausstattung
Gerne beschreiben wir Ihnen nachstehend kurz die wichtigsten Details zur Innenausstattung der Immobilie.
+ Es sind weiße Kunststofffenster mit Isolierverglasung verbaut. Diese wurden auf der Ost, West und Nordseite im Jahr 2009 erneuert.
+ Auf der Südseite sind ebenfalls weiße Kunststofffenster mit...
Preisinformation
2 Garagenstellplätze
Weitere Informationen
Sonstiges
Es liegt ein Energiebedarfsausweis vor.
Dieser ist gültig bis 7.9.2033.
Endenergiebedarf beträgt 362.80 kwh/(m²*a).
Wesentlicher Energieträger der Heizung ist Öl.
Das Baujahr des Objekts lt. Energieausweis ist 1962.
Die Energieeffizienzklasse ist H.
Alle Angaben basieren auf Informationen...
Anbieter der Immobilie
Online-ID: 2lg5u5n
Referenznummer: 5179
Finde Angebote wie dieses
Hier geht es zu unserem Impressum, den Allgemeinen Geschäftsbedingungen, den Hinweisen zum Datenschutz und nutzungsbasierter Online-Werbung.