
VON POLL IMMOBILIEN Celle - Simon von Collrepp
Herr Cihan Tagay
004 ···
Nr. anzeigenPreise & Kosten
Kaution
2.500,00
Warum sehe ich diese Anzeige? – Du siehst diese Anzeige basierend auf Ihrer Navigation auf unserer Website und den Suchkriterien, die du verwendet hast.
Lage
Willkommen in Celle
Die Residenzstadt Celle, mit etwa 73.000 Einwohnern, liegt im südlichen Bereich der Lüneburger Heide, mit unmittelbarer Nähe zu den Städten Hannover und Braunschweig. Die Altstadt Celles bildet das größte zusammenhängende Fachwerkensemble Europas und wird von tausenden Touristen jährlich besucht...
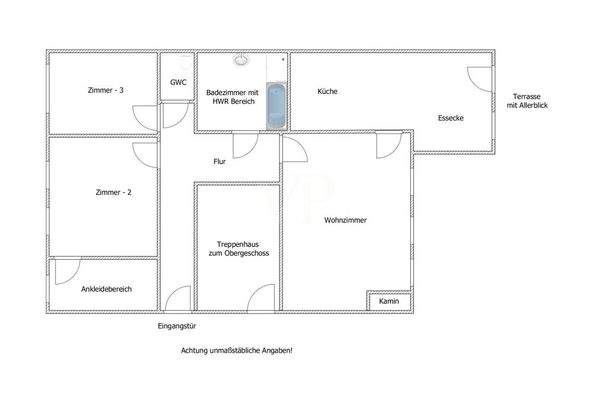
Die Wohnung
Wohnungslage
Erdgeschoss
Bezug
01.01.2026
Wohnanlage
Energie & Heizung
Warum sehe ich diese Anzeige? – Du siehst diese Anzeige basierend auf Ihrer Navigation auf unserer Website und den Suchkriterien, die du verwendet hast.
Energieausweistyp
Verbrauchsausweis
Gebäudetyp
Wohngebäude
Baujahr laut Energieausweis
1910
Wesentliche Energieträger
GAS
Gültigkeit
bis 09.07.2028
Effizienzklasse
E
Endenergieverbrauch
158,20 kWh/(m²·a)
Weitere Energiedaten
Energieträger
Gas
Heizungsart
Fußbodenheizung, offener Kamin, Zentralheizung
Details
Objektbeschreibung
Diese Premium Wohnung befindet sich in bester Lage von Celle direkt an der Aller!
In Innenstadtnähe, und mit direktem Allerzugang leben Sie hier auf ca. 106 m² Wohnfläche, welche sich auf drei Zimmer, die Küche ,ein Gäste-WC sowie einem Dusch-und Wannenbad und der Diele verteilen.
Nach kompletter Renovierung...
Ausstattung
-Hochwertige Badkeramik und Armaturen
-Kamin von Brunner
-Schließsystem
-Terrasse mit Gabionen und Kräuterbeet
-Elektrische Markise mit Windsensor und LED-Beleuchtung
-Eingangstür / Videoanlage von Renz
-Hochwertige Einbauküche mit Kaffeevollautomat
-1 zusätzlicher Kellerraum
Weitere Informationen
Sonstiges
Es liegt ein Energieverbrauchsausweis vor.
Dieser ist gültig bis 9.7.2028.
Endenergieverbrauch beträgt 158.20 kwh/(m²*a).
Wesentlicher Energieträger der Heizung ist Gas.
Das Baujahr des Objekts lt. Energieausweis ist 1910.
Die Energieeffizienzklasse ist E.
PROVISIONSHINWEIS: Mit der Anfrage...
Anbieter der Immobilie
Online-ID: 2lga85e
Referenznummer: 25 217 063
Finde Angebote wie dieses
Hier geht es zu unserem Impressum, den Allgemeinen Geschäftsbedingungen, den Hinweisen zum Datenschutz und nutzungsbasierter Online-Werbung.