

Gruttmann Immobilien GmbH
Frau Britta C. Gruttmann
030 ···
Nr. anzeigenPreise & Kosten
Provision für Käufer
Gemäß der gesetzlichen Regelung zur Teilung der Maklercourtage beträgt die Provision 3,57% des Kaufpreises inklusive 19% MwSt. jeweils in gleicher Höhe für die Verkäuferseite sowie für die Käuferseite.
Lage
Lübars ist nicht nur das einzige erhalten gebliebene Dorf innerhalb der Stadtgrenzen Berlins, sondern auch das älteste Dorf des Bezirkes Reinickendorf.
Ein historischer Dorfkern, weite Felder und Wiesen. Wer in Lübars spazieren geht, vergisst schnell, dass er sich in einer Millionenstadt befindet. Hier scheint die Zeit...
Das Haus
Baujahr
1973
Derzeitige Nutzung
frei
Energie & Heizung
Warum sehe ich diese Anzeige? – Du siehst diese Anzeige basierend auf Ihrer Navigation auf unserer Website und den Suchkriterien, die du verwendet hast.
Energieausweistyp
Bedarfsausweis
Gebäudetyp
Wohngebäude
Baujahr laut Energieausweis
2010
Wesentliche Energieträger
Gas
Gültigkeit
04.06.2025 bis 03.06.2035
Effizienzklasse
G
Endenergiebedarf
236,22 kWh/(m²·a)
Weitere Energiedaten
Haustyp
Fertighaus
Energieträger
Gas
Heizungsart
Zentralheizung
Details
Objektbeschreibung
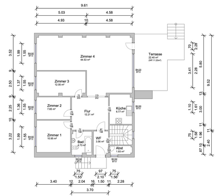
Das Einfamilienhaus wurde 1973 auf einem ca. 495 m² großen Grundstück, direkt am Naturschutzgebiet gelegen, erbaut und verfügt über ca. 116 m² Wohnfläche im Erdgeschoss sowie ca. 116 m² Nutzfläche im Untergeschoss. Es handelt sich um ein ORA-Fertighaus.
Im Erdgeschoss befinden sich ein großzügiger Eingangsbereich; ein...
Anbieter der Immobilie

Online-ID: 2lgas5v
Referenznummer: VK-25368 a
Finde Angebote wie dieses
Hier geht es zu unserem Impressum, den Allgemeinen Geschäftsbedingungen, den Hinweisen zum Datenschutz und nutzungsbasierter Online-Werbung.