

Paulick Thierfelder Immobilien GmbH
Herr Frank Thierfelder
034 ···
Nr. anzeigenPreise & Kosten
Provision für Mieter
Bitte beachte, das Angebot kann bei Vertragsabschluss die Zahlung einer Provision beinhalten. Weitere Informationen erhältst Du vom Anbieter.
Warum sehe ich diese Anzeige? – Du siehst diese Anzeige basierend auf Ihrer Navigation auf unserer Website und den Suchkriterien, die du verwendet hast.
Lage
Der Vario Park Taucha liegt ca. 800 m südlich der B87. Die BAB14 Anschlussstelle Nordost ist ca. 1,5 km südwestlich entfernt. Die S-Bahn Station Taucha ist in ca. 600 m fussläufig entfernt. Direkt an der Portitzer Straße befindet sich die Bushaltestelle Am Obstgut mit der Buslinie 81, welche den Taucha S-Bahnhof mit der...
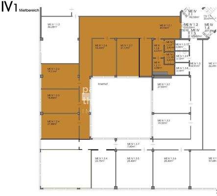
Büro-/Praxisfläche
Kategorie
Bürofläche
Baujahr
1994
Bezug
nach Vereinbarung
Geschoss
1. Geschoss
Details
Objektbeschreibung
Willkommen in Ihrem neuen Bürostandort in Taucha, Am Obstgut 9, wo modernes Arbeiten auf Komfort trifft. Dieses hervorragend gepflegte Büro- und Gewerbeobjekt stammt aus dem Jahr 1994 und bietet auf drei Etagen vielfältige Möglichkeiten für Ihr Unternehmen. Die Gesamtnutzfläche von beeindruckenden 2.100 Quadratmetern...
Ausstattung
Lichtdurchflutete Büroräume mit großen Fensterflächen
Vinyl-Bodenbelag
Fensterbrüstungskanäle für Strom- und IT-Verkabelung
IT-Verkabelung vorhanden und kann übernommen werden
LED Deckenbeleuchtung
1 WC Bereich
1 Teeküche
Alle Räume klimatisiert
Möblierung und Einrichtung kann mitgemietet werden
Weitere Informationen
Sonstiges
Kostenfreie Parkplätze im öffentlichen Parkraum und auf den Grundstücken Am Obstgut 9 und 11.
Nachbarschaft:
KTM Bikes+Bikes
ARAL Tankstelle
NOWEDA
Autohandel und Autowerkstätten
Imbisswagen
Büromieter
Stichworte
Gesamtfläche: 189,00 m², Distanz zum Kindergarten: 0.58, Distanz...
Anbieter der Immobilie
Paulick Thierfelder Immobilien GmbH
Nordstraße 21, 04105 Leipzig

Online-ID: 2lgbg5k
Referenznummer: 01146_3
Finde Angebote wie dieses
Hier geht es zu unserem Impressum, den Allgemeinen Geschäftsbedingungen, den Hinweisen zum Datenschutz und nutzungsbasierter Online-Werbung.