
Meilenstein Realitäten GmbH
Frau Gabriela Frenner-Piglia
004 ···
Nr. anzeigenPreise & Kosten
Provision für Käufer
3 % vom Kaufpreis zzgl. 20 % MwSt. inkl. MwSt.
Lage
Die Immobilie befindet sich in Saalfelden( SBG), im Ortsteil Dorfheim, am nordwestlichen Rand des Stadtgebiets, westlich der Saalach.
Die Lage zeichnet sich durch eine ruhige, familienfreundliche Umgebung mit ländlichem Charakter aus, In unmittelbarer Nähe befinden sich Nahversorger, Schulen und Freizeiteinrichtungen...
Das Haus
Kategorie
Einfamilienhaus
Baujahr
2007
Bezug
nach Absprache
Energie & Heizung
Warum sehe ich diese Anzeige? – Du siehst diese Anzeige basierend auf Ihrer Navigation auf unserer Website und den Suchkriterien, die du verwendet hast.
Heizwärmebedarf (HWB)
69,00 kWh/(m²·a)
Gesamtenergieeffizienz (fGEE)
1,05
Weitere Energiedaten
Energieträger
Gas
Heizungsart
Fußbodenheizung, offener Kamin
Details
Objektbeschreibung
Dieses stilvolle Wohlfühlhaus wurde im Jahr 2007 in massiver Holzbauweise errichtet und seither mit viel Sorgfalt und Investitionen in Technik, Komfort und Design modernisiert. Die Kombination aus großzügiger Raumaufteilung, hochwertiger Ausstattung und laufender Instandhaltung macht diese Immobilie zu einem echten Juwel für...
Ausstattung
Modernisierungen im Überblick:
2018: Komplette Neugestaltung des Innenbereichs - offen, hell und hochwertig
2019: Außenbereich umfassend saniert: Fassadenisolierung und -putz, neue Fliesen auf den Balkonen, Glasbrüstung, geflämmtes Dach und Dachrinnenheizung
2021: Neue Estrich- und Bodenverlegung in der...
Preisinformation
1 Garagenstellplatz
Weitere Informationen
Stichworte
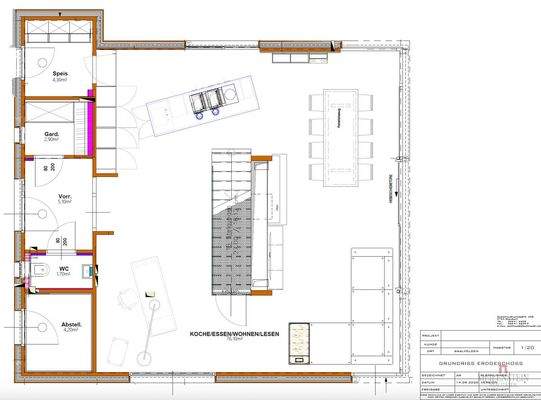
Gesamtfläche: 280,00 m², Anzahl der Schlafzimmer: 3, Anzahl der Badezimmer: 4, Anzahl der separaten WCs: 3, Anzahl Terrassen: 4, Anzahl der Wohneinheiten: 1, Bundesland: Salzburg, Distanz zum Kindergarten: 0.80, Distanz zur Grundschule: 0.79, Distanz zur Realschule: 0.85, Distanz zur nächsten Einkaufsmöglichkeit...
Anbieter der Immobilie
Meilenstein Realitäten GmbH
Maria-Theresien-Straße, 34, 6020 Innsbruck
Online-ID: 2lgbj5t
Referenznummer: GF3366
Finde Angebote wie dieses
Günstige Immobilienfinanzierung einfach online berechnen
Persönliches Angebot berechnenWarum sehe ich diese Werbung? – Du siehst diese Werbung basierend auf Deiner Navigation auf unserer Website und der von Dir verwendeten Suchkriterien.
Diese Werbung wird bezahlt von durchblicker
Werbung melden
Hier geht es zu unserem Impressum, den Allgemeinen Geschäftsbedingungen, den Hinweisen zum Datenschutz und nutzungsbasierter Online-Werbung.