
VON POLL IMMOBILIEN Landsberg am Lech - Dirk Bolsinger
Shop Landsberg am Lech VON POLL IMMOBILIEN
004 ···
Nr. anzeigenPreise & Kosten
Provision für Käufer
Käuferprovision beträgt 3,57 % (inkl. MwSt.) des beurkundeten Kaufpreises
Lage
Die Region rund um Kaufering zeichnet sich durch ihre hervorragende Anbindung an die Metropolregion München sowie die Nähe zu Augsburg und Landsberg am Lech aus. Die reizvolle Umgebung mit zahlreichen Seen, Wäldern und dem idyllischen Lech bietet einen hohen Freizeit- und Erholungswert. Rad- und Wanderwege, kulturelle...
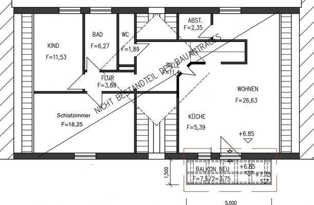
Die Wohnung
Wohnungslage
Dachgeschoss
Wohnanlage
Energie & Heizung
Warum sehe ich diese Anzeige? – Du siehst diese Anzeige basierend auf Ihrer Navigation auf unserer Website und den Suchkriterien, die du verwendet hast.
Energieausweistyp
Bedarfsausweis
Gebäudetyp
Wohngebäude
Baujahr laut Energieausweis
2014
Wesentliche Energieträger
FERN
Gültigkeit
bis 09.09.2028
Effizienzklasse
G
Endenergiebedarf
241,20 kWh/(m²·a)
Weitere Energiedaten
Energieträger
Fernwärme, Holz
Heizungsart
Fußbodenheizung
Details
Objektbeschreibung
Diese moderne 3-Zimmer-Dachgeschosswohnung mit Gäste WC, offenem Wohn- und Essbereich und Balkon eignet sich hervorragend als wertbeständige Kapitalanlage und bietet zugleich Eigennutzern ein helles, einladendes Zuhause. Die Wohnung überzeugt mit einer durchdachten Raumaufteilung, die ein angenehmes Wohngefühl schafft und...
Ausstattung
- Offener Wohn-, Ess- und Kochbereich
- Zwei Dachböden
- Separater Abstellraum für zusätzlichen Stauraum
- Hochwertige Böden: Echtholzparkett in den Wohnräumen, große Fliesen im Bad
- Modernes Badezimmer + separates Gäste-WC
- Fußbodenheizung im Badezimmer und Gäste-WC
- Stehdusche...
Preisinformation
1 Tiefgaragenstellplatz, Kaufpreis: 25.000,00 EUR
Weitere Informationen
Sonstiges
Es liegt ein Energiebedarfsausweis vor.
Dieser ist gültig bis 9.9.2028.
Endenergiebedarf beträgt 241.20 kwh/(m²*a).
Wesentlicher Energieträger der Heizung ist Fernwärme.
Das Baujahr des Objekts lt. Energieausweis ist 2014.
Die Energieeffizienzklasse ist G.
Stichworte
Anzahl der...
Anbieter der Immobilie
VON POLL IMMOBILIEN Landsberg am Lech - Dirk Bolsinger
Hinterer Anger 305, 86899 Landsberg am Lech
Online-ID: 2lgfx5v
Referenznummer: 25 142 045
Finde Angebote wie dieses
Hier geht es zu unserem Impressum, den Allgemeinen Geschäftsbedingungen, den Hinweisen zum Datenschutz und nutzungsbasierter Online-Werbung.