

MAIERIMMOBILIEN GmbH
Herr Philipp Maier
+49 ···
Nr. anzeigenPreise & Kosten
Provision für Käufer
Bitte beachte, das Angebot kann bei Vertragsabschluss die Zahlung einer Provision beinhalten. Weitere Informationen erhältst Du vom Anbieter.
Lage
Parsdorf: Naturnahe und verkehrsgünstige Lage
Ländliche Umgebung und ausgezeichnete Infrastruktur
Das neu erbaute Wohnhaus mit zwölf Wohneinheiten und einer Tiefgarage liegt in ruhiger und naturnaher Lage in Parsdorf, einem Ortsteil der Gemeinde Vaterstetten.
Parsdorf liegt ca. 15 km östlich der bayerischen...
Die Wohnung
Kategorie
Terrassenwohnung
Wohnungslage
Erdgeschoss
Bezug
Sofort
Wohnanlage
Energie & Heizung
Warum sehe ich diese Anzeige? – Du siehst diese Anzeige basierend auf Ihrer Navigation auf unserer Website und den Suchkriterien, die du verwendet hast.
Weitere Energiedaten
Energieträger
Erdwärme
Heizungsart
Zentralheizung
Details
Objektbeschreibung
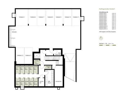
Auf dem Grundstück (Gesamtgröße 1064m²) wurden 12 Wohnungen, 9 Tiefgarageneinzelstellplätze, 4 Aussenstellplätze, Fahrradabstellplätze sowie 1 Kinderspielplatz mit Gemeinschaftsgarten errichtet. Die 4 Erdgeschosswohnungen verfügen jeweils über großzügige Gärten, welche als Sondernutzungsrecht diesen Einheiten zugewiesen sind...
Ausstattung
Hochwertige Ausstattung für komfortables Wohnen
* umweltfreundliche und innovative Holz- und Beton-Hybridbauweise (KfW 40 QNG-Standard)
* Degressive und Sonder-AFA für Kapitalanleger (WEITERE INFORMATIONEN HIERZU AUF ANFRAGE)
* Gartenanteil WE1 ca. 100,50m² (Sondernutzungsrecht)
* Erdgeschosswohnungen jeweils...
Preisinformation
1 Tiefgaragenstellplatz, Kaufpreis: 22.500,00 EUR
Weitere Informationen
Sonstiges
Baujahr: 2025
Heizungsart: Zentralheizung
Energieausweistyp: Bedarfsausweis
Energiekennwert: 8,3 kWh/(m²*a)
Energie mit Warmwasser: Nein
Energieeffizienzklasse: A+
Befeuerung/Energieträger: Erdwärme
Stichworte
Stellplatz vorhanden, Nutzfläche: 168,60 m², Anzahl der Schlafzimmer: 1...
Anbieter der Immobilie
MAIERIMMOBILIEN GmbH
Oberanger 42, 80331 München

Online-ID: 2lgg55j
Referenznummer: 2127
Finde Angebote wie dieses
Hier geht es zu unserem Impressum, den Allgemeinen Geschäftsbedingungen, den Hinweisen zum Datenschutz und nutzungsbasierter Online-Werbung.