

Hansestadt Immobilien GmbH
Frau Rosalia Fallapp
041 ···
Nr. anzeigenPreise & Kosten
Provision für Käufer
7,14 % inkl. der ges. MwSt.
Lage
Lauenburg ist die südlichste Stadt Schleswig-Holsteins und gehört zum Kreis Herzogtum Lauenburg. Sie liegt an der Grenze zu Niedersachsen und ist ein beliebtes Ziel für Touristen, Naturfreunde und Wassersportler. Die Stadt ist geprägt von ihrer gut erhaltenen Altstadt mit engen Gassen, historischen Fachwerkhäusern und einer...
Gastronomie/Hotel
Kategorie
Restaurant
Baujahr
1950
Bezug
nach Vereinbarung
Energie & Heizung
Warum sehe ich diese Anzeige? – Du siehst diese Anzeige basierend auf Ihrer Navigation auf unserer Website und den Suchkriterien, die du verwendet hast.
Weitere Energiedaten
Energieträger
Gas
Details
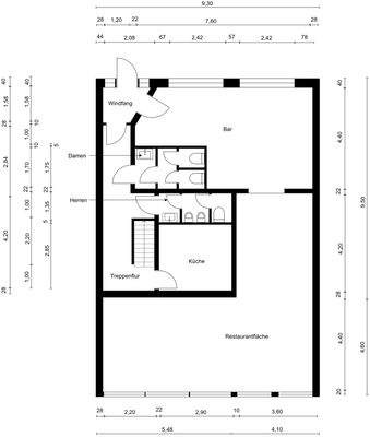
Objektbeschreibung
Die Immobilie in der Elbstraße in Lauenburg stellt eine seltene Gelegenheit dar: Direkt an der Elbe gelegen, vereint sie eine großzügige Gewerbefläche mit attraktivem Wohnraum auf zwei Ebenen - ideal für Selbstnutzer, Gastronomen oder Investoren. Die Gewerbeeinheit im Erdgeschoss verfügt über eine einladende Bar mit...
Ausstattung
. Fantastischer Elbblick
. Wiederaufbau 1950
. Mitten in der begehrten Lauenburger Altstadt
. Gewerbefläche im Erdgeschoss
. Bar / Theke in der Gewerbefläche
. Zwei Wohneinheiten im 1. Und 2. OG
(werden frei übergeben)
. Verkehrsberuhigte Lage
Flächen (ohne Gewähr)
Wohnfläche 134...
Weitere Informationen
Sonstiges
Bitte haben Sie Verständnis dafür, dass wir unseren Auftraggebern Diskretion zugesagt haben und Ihrer Anfrage nach einem ausführlichen Exposé nur nachkommen können, wenn Sie uns Ihren Namen und Ihre postalische Anschrift mitteilen.
Es wird darauf hingewiesen, dass die von uns weitergegebenen...
Anbieter der Immobilie

Online-ID: 2lgjh57
Referenznummer: HI2025192/Gastro
Finde Angebote wie dieses
Hier geht es zu unserem Impressum, den Allgemeinen Geschäftsbedingungen, den Hinweisen zum Datenschutz und nutzungsbasierter Online-Werbung.