

Immobilien Julia Grauf
Frau Julia Grauf
+49 ···
Nr. anzeigenPreise & Kosten
Provision für Käufer
3,57 % inkl.19% MwSt
Lage
Die schöne Lage inmitten des Romantischen Franken und die gute Verkehrsanbindung nach Ansbach, Nürnberg und Würzburg machen Lehrberg zu einem attraktiven Wohnort. Nur wenige Autominuten von der Regierungshauptstadt Ansbach entfernt, verfügt die aufstrebende Marktgemeinde mit mehr als 3.000 Einwohnern über eine sehr gute...
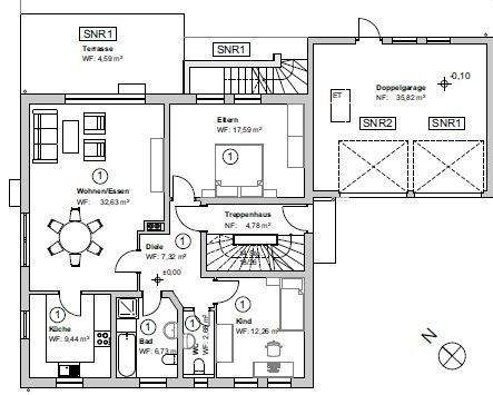
Die Wohnung
Wohnungslage
Erdgeschoss
Bezug
ab sofort
Wohnanlage
Energie & Heizung
Warum sehe ich diese Anzeige? – Du siehst diese Anzeige basierend auf Ihrer Navigation auf unserer Website und den Suchkriterien, die du verwendet hast.
Energieausweistyp
Bedarfsausweis
Gebäudetyp
Wohngebäude
Baujahr laut Energieausweis
1999
Wesentliche Energieträger
OEL
Gültigkeit
bis 26.01.2035
Effizienzklasse
E
Endenergiebedarf
159,00 kWh/(m²·a)
Weitere Energiedaten
Energieträger
Öl
Heizungsart
Zentralheizung
Details
Objektbeschreibung
Diese gemütliche und insgesamt freundliche Wohneinheit befindet sich im Erdgeschoss eines gepflegten 3-Familienhauses, welches 1999 massiv erbaut wurde.
Beim Betreten der 3-Zimmer-Wohnung befinden wir uns direkt in einem geräumigen Flur. Auf der rechten Seite erreichen Sie gleich das Schlafzimmer. Wenn man auf die...
Ausstattung
- Terrassse
- Tageslichtbad
- Gäste WC
- Einbauküche
- Laminatböden
- Fliesenböden
- 2 Kellerräume
- Garage
Bedarfsausweis
Ausgestellt am 27.01.2025
Gültig bis 26.01.2035
Baujahr Haus 1999
Baujahr Heiztechnik: 2015
Kennwert: 159,00kWh/(m²*a)
Kennzahl: E
Energieträger...
Preisinformation
1 Garagenstellplatz
Weitere Informationen
Sonstiges
Alle Daten und Angaben sind ohne Gewähr und beziehen sich auf die uns
vorliegenden Pläne, uns übergebene Unterlagen und Skizzen sowie Aussagen
Dritter. Für die Richtigkeit, Vollständigkeit und Aktualität
unserer Angaben können wir keine Haftung übernehmen.
Stichworte
Anzahl der Schlafzimmer...
Anbieter der Immobilie

Immobilien Julia Grauf
Krapfenau 39, 91555 Feuchtwangen

Online-ID: 2lglg5m
Referenznummer: 1085
Finde Angebote wie dieses
Hier geht es zu unserem Impressum, den Allgemeinen Geschäftsbedingungen, den Hinweisen zum Datenschutz und nutzungsbasierter Online-Werbung.