

M.Maile Immobilien GmbH
Herr Michael Maile
071 ···
Nr. anzeigenPreise & Kosten
Provision für Käufer
3,57 % inkl. 19 % MwSt. inkl. MwSt.
Lage
Das gepflegte 1-3 Famiienhaus befindet sich in unverbaubarer Aussichtlage im oberen Teil von Triberg im Mittleren Schwarzwald und bietet zur Deckung des täglichen Bedarfs u.a. verschiedene
Lebensmittelmärkte und Geschäfte. Die medizinische Grundversorgung ist durch Praxen und eine Apotheke gesichert.
Es gibt mehrere...
Das Haus
Kategorie
Mehrfamilienhaus
Baujahr
1969
Bezug
sofort
Energie & Heizung
Warum sehe ich diese Anzeige? – Du siehst diese Anzeige basierend auf Ihrer Navigation auf unserer Website und den Suchkriterien, die du verwendet hast.
Energieausweistyp
Verbrauchsausweis
Gebäudetyp
Wohngebäude
Baujahr laut Energieausweis
1989
Wesentliche Energieträger
OEL
Gültigkeit
20.03.2024 bis 01.03.2034
Effizienzklasse
C
Endenergieverbrauch
84,40 kWh/(m²·a) - Warmwasser enthalten
Weitere Energiedaten
Haustyp
Massivhaus
Heizungsart
Zentralheizung
Details
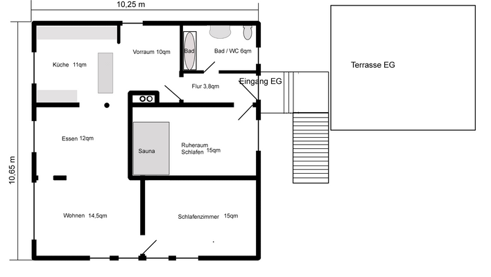
Objektbeschreibung
Herzlich Willkommen in diesem sehr gepflegten, großzügigen und individuell aufteilbaren Haus mit unverbaubarer Aussichtlage.
Durch die Aufteilung in drei selbständige Eigentumswohnungen, zu denen jeweils ein separater Hauseingang führt, bietet das Haus viele Möglichkeiten. Es eignet sich als
Mehrgenerationen- oder...
Ausstattung
Das gesamte Haus wurde 1988 umgebaut und grundsaniert. Eine weitere Renovierung erfolgte 1993. Insgesamt befindet sich das Gebäude in einem äußerst gepflegten und praktisch einzugsbereiten Zustand.
Die Ölzentralheizung mit Niedertemperaturkessel wurde 1989 eingebaut und liefert immer noch sehr gute Werte. Ein...
Preisinformation
2 Stellplätze
2 Garagenstellplätze
Weitere Informationen
Sonstiges
Schauen Sie sich gerne das Besichtigungsvideo für einen fundierten ersten Eindruck an!
Haben wir Ihr Interesse geweckt? Dann freuen wir uns auf Ihre aussagekräftige Anfrage und vereinbaren gerne einen individuellen Besichtigungstermin mit Ihnen.
Stichworte
Garage vorhanden, Stellplatz vorhanden...
Anbieter der Immobilie
M.Maile Immobilien GmbH
Tübingerstr 19, 70178 Stuttgart

Online-ID: 2lgln5v
Referenznummer: 995
Finde Angebote wie dieses
Hier geht es zu unserem Impressum, den Allgemeinen Geschäftsbedingungen, den Hinweisen zum Datenschutz und nutzungsbasierter Online-Werbung.