

EDE INVEST GmbH & Co. KG
Frau Susanne Dettinger-Klemm
+49 ···
Nr. anzeigenPreise & Kosten
Provision für Käufer
2,38 % inkl. MwSt. (2,00 % netto) inkl. MwSt.
Lage
Südwestlich von München im Fünf-Seen-Land Breitbrunn, ein Gemeindeteil von Herrsching am Ammersee im oberbayerischen Landkreis Starnberg. Vom See bis hinauf zur Straße nach Inning sind die Häuserreihen zwischen den Bio-Obstplantagen wie Treppenstufen angelegt. Breitbrunn hat eine eigene Dampfer-Anlegestelle, eine große...
Das Haus
Kategorie
Villa
Baujahr
2026
Energie & Heizung
Warum sehe ich diese Anzeige? – Du siehst diese Anzeige basierend auf Ihrer Navigation auf unserer Website und den Suchkriterien, die du verwendet hast.
Energieausweis: für diesen Gebäudetyp nicht notwendig
Details
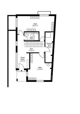
Objektbeschreibung
Atemberaubend sind die Aussichten von Ihrem zukünftigen Zuhause oberhalb des Ammersees südlich von München im Fünf-Seen-Land. Zum Verkauf kommt ein ca. 560 m² großes Grundstück in einer Villenkolonie von Breitbrunn, gleich in der Nähe einer berühmten deutschen Sängerin. Vom Architekten geplant und genehmigt ist bereits eine...
Ausstattung
- Rohbau ist bereits im fotgeschrittenen Zustand
- Traumhafte Ausblicke über den Ammersee
- Sehr ruhige Wohnlage
- Hinterliegendes Grundstück in leichter Hanglage
- Nur ca. 5 Gehminuten zum See
- Dachterrasse mit Seeblick
- Ca. 260 m² Wohnfläche
-...
Weitere Informationen
Sonstiges
Alle in diesem Exposé verwendeten Angaben beruhen auf Informationen von Dritten (z.B. Eigentümer, Hausverwaltung, etc.) und daher freibleibend und ohne jegliche Gewähr. Zahlenangaben sind immer als ca-Angaben zu verstehen. Irrtum, Änderungen, Zwischenverkauf oder Zwischenvermietung bleiben vorbehalten. Die...
Anbieter der Immobilie
EDE INVEST GmbH & Co. KG
Bavariaring 18, 80336 München

Online-ID: 2lgnk5c
Referenznummer: 3080_6
Finde Angebote wie dieses
Hier geht es zu unserem Impressum, den Allgemeinen Geschäftsbedingungen, den Hinweisen zum Datenschutz und nutzungsbasierter Online-Werbung.