

Weiland & Kirch Immobilien
068 ···
Nr. anzeigenPreise & Kosten
Provision für Käufer
3,57% inkl. MwSt.
Der Maklervertrag mit uns kommt durch die Bestätigung der Inanspruchnahme unserer Maklertätigkeit in Textform zustande. Dies kann u. a. Weitere Informationen siehe Provisionshinweis.
Abschreibung/Anlage
Denkmalschutz-Afa
Lage
Die Immobilie liegt in der Ahornstraße, einem ruhigen Wohngebiet von Saarbrücken-Burbach. Das Viertel bietet eine gute Mischung aus urbaner Infrastruktur und nachbarschaftlichem Wohnen. Einkaufsmöglichkeiten, Schulen, Kindergärten sowie Bus- und Bahnanbindung befinden sich in unmittelbarer Nähe. Über die B51 erreichen Sie die...
Das Haus
Kategorie
Doppelhaushälfte
Baujahr
1935
Energie & Heizung
Warum sehe ich diese Anzeige? – Du siehst diese Anzeige basierend auf Ihrer Navigation auf unserer Website und den Suchkriterien, die du verwendet hast.
Energieausweis: für diesen Gebäudetyp nicht notwendig
Weitere Energiedaten
Haustyp
Massivhaus
Details
Objektbeschreibung
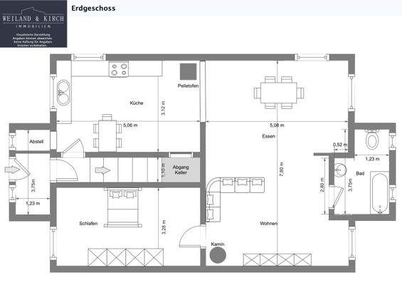
Diese stilvolle Doppelhaushälfte steht unter Ensembleschutz und vereint historischen Charakter mit durchdachter Sanierung. Ursprünglich 1935 erbaut, wurde die Immobilie Anfang der 2000er Jahre umfassend modernisiert und zu einer großzügigen Wohneinheit zusammengeführt. Das Ergebnis: rund 136?m² Wohnfläche auf zwei Etagen, ein...
Weitere Informationen
Provisionshinweis
3,57% inkl. MwSt.
Der Maklervertrag mit uns kommt durch die Bestätigung der Inanspruchnahme unserer Maklertätigkeit in Textform zustande. Dies kann u. a. durch die Unterschrift des Besichtigungsnachweises, des Maklervertrags oder des Objekt-Exposés erfolgen. Die Maklerprovision beträgt 3,57 % inkl...
Anbieter der Immobilie
Online-ID: 2lgq55p
Referenznummer: R10060#V5EmNf
Finde Angebote wie dieses
Hier geht es zu unserem Impressum, den Allgemeinen Geschäftsbedingungen, den Hinweisen zum Datenschutz und nutzungsbasierter Online-Werbung.