

Edilfin
Frau Stefania Ravelli
+39 ···
Nr. anzeigenPreise & Kosten
Provision für Käufer
4%
Die Wohnung
Wohnungslage
Erdgeschoss
Derzeitige Nutzung
frei
Wohnanlage
Energie & Heizung
Warum sehe ich diese Anzeige? – Du siehst diese Anzeige basierend auf Ihrer Navigation auf unserer Website und den Suchkriterien, die du verwendet hast.
Weitere Energiedaten
Energieträger
Elektro, Gas
Heizungsart
Fußbodenheizung
Details
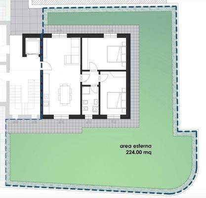
Objektbeschreibung
Ref: EB-035-470
DESENZANO DEL GARDA NEUE WOHNUNGEN der Klasse A3.
Nur wenige Meter von den berühmtesten Stränden des Gardasees entfernt und in bequemer Nähe zu allen Annehmlichkeiten und wichtigen Verkehrswegen bieten wir neue, hochmoderne Dreizimmerwohnungen der Klasse A3 mit modernster Technologie zum Verkauf...
Weitere Informationen
Stichworte
Versorgung: Städtische Wasserversorgung, Städtische Stromversorgung
Anbieter der Immobilie
Edilfin
Via Giorgio Strehler 19, 25080 Manerba del Garda

Online-ID: 2lgqv58
Referenznummer: 33091035-470
Finde Angebote wie dieses
Hier geht es zu unserem Impressum, den Allgemeinen Geschäftsbedingungen, den Hinweisen zum Datenschutz und nutzungsbasierter Online-Werbung.