
Finanzkanzlei MLH Immobilien GmbH
Herr Michael Ruf
017 ···
Nr. anzeigenPreise & Kosten
Provision für Käufer
provisionsfrei
Lage
Die Immobilie befindet sich in der ruhigen und idyllischen Ortschaft Klingen, einem Ortsteil der Stadt Aichach, im Herzen des Naturraums "Aichacher Land". Die Region zeichnet sich durch ihre ländliche Ruhe und gute Anbindung an die Umgebung aus.
Infrastruktur: Klingen profitiert von einer hervorragenden Anbindung an...
Das Haus
Kategorie
Reihenendhaus
Baujahr
2025
Bezug
sofort
Energie & Heizung
Warum sehe ich diese Anzeige? – Du siehst diese Anzeige basierend auf Ihrer Navigation auf unserer Website und den Suchkriterien, die du verwendet hast.
Energieausweistyp
Bedarfsausweis
Gebäudetyp
Wohngebäude
Baujahr laut Energieausweis
2024
Wesentliche Energieträger
Elektroenergie
Gültigkeit
10.04.2025 bis 09.04.2035
Effizienzklasse
A+
Endenergiebedarf
22,60 kWh/(m²·a)
Weitere Energiedaten
Haustyp
Massivhaus
Energieträger
Elektro
Heizungsart
Fußbodenheizung
Details
Objektbeschreibung
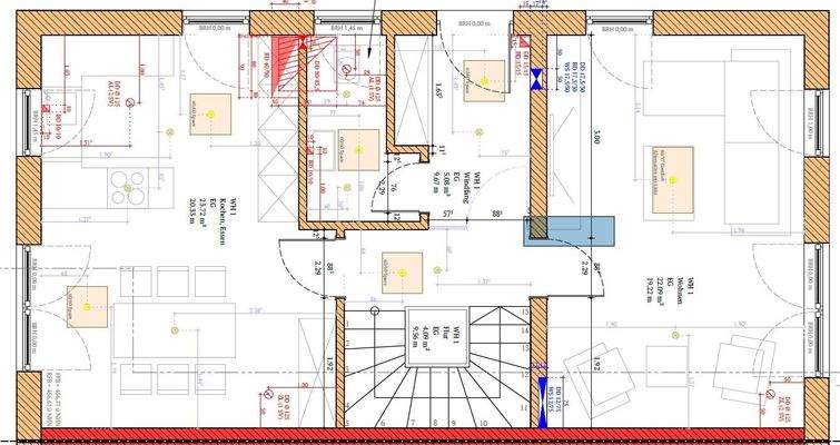
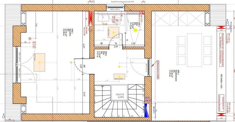
Das neugebaute Reiheneckhaus besticht durch seine durchdachte Raumaufteilung und die hochwertige Ausstattung sowie einen freien Blick ins Grüne.
Beim Betreten des Hauses befindet man sich im Dielen- und Garderobenbereich. Von hieraus gelangen Sie in die Gäste-Toilette sowie in den großzügigen und hellen Küchen- und...
Ausstattung
Individuelle Ausstattungsmerkmale:
- Dachterrasse
- 3-fach Isolierverglasung
- fertiggestellte Außenanlagen bis zum Einzug
- PV-Anlage 5,34 kWp
- Batteriespeicher 9,6 kWh
- Brauchwasserwärmepumpe
- Lüftungsanlage mit Wärmerückgewinnung
- moderne Infrarotdeckenheizungen
- hochwertige...
Weitere Informationen
Sonstiges
Alle in diesem Exposé aufgeführten Objektdaten beruhen auf Angaben des Verkäufers. Für die Richtigkeit kann keine Haftung übernommen werden. Alle Flächenangaben sind ca.-Werte.
Alle Angaben nach bestem Wissen. Irrtum und Zwischenverkauf vorbehalten.
Wir treten als alleiniger Interessensvertreter des...
Anbieter der Immobilie
Finanzkanzlei MLH Immobilien GmbH
Münchner Straße 2, 86316 Friedberg
Online-ID: 2lgs85c
Referenznummer: 202501-3
Finde Angebote wie dieses
Hier geht es zu unserem Impressum, den Allgemeinen Geschäftsbedingungen, den Hinweisen zum Datenschutz und nutzungsbasierter Online-Werbung.