
IM Lifestyle Properties GmbH
Herr Aleksandar Mihajlovic
+43 ···
Nr. anzeigenPreise & Kosten
Provision für Käufer
3% des Kaufpreises zzgl. 20% USt.
Das Renditeobjekt
Energie & Heizung
Warum sehe ich diese Anzeige? – Du siehst diese Anzeige basierend auf Ihrer Navigation auf unserer Website und den Suchkriterien, die du verwendet hast.
Heizwärmebedarf (HWB)
69,00 kWh/(m²·a)
Gesamtenergieeffizienz (fGEE)
1,27
Weitere Energiedaten
Heizungsart
Fußbodenheizung, Luft-/Wasser-Wärmepumpe
Details
Objektbeschreibung
Zum Verkauf gelangt ein exklusives Wohnungspaket bestehend aus 6 modernen, lichtdurchfluteten Wohnungen im 21. Wiener Gemeindebezirk.
Die Wohnungen werden als Appartments zur Kurzzeitvermietung genutzt und sind demenstsprechend umgewidmet.
Bei den Immobilien handelt es sich um neu aufgebaute Altbauwohnungen...
Weitere Informationen
Stichworte
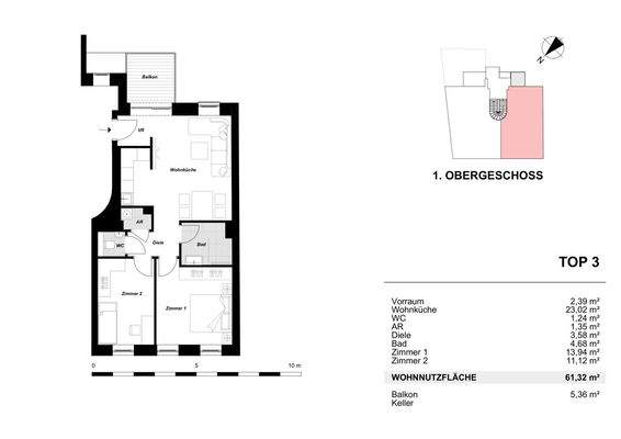
Wohnfläche: 382,96 m², Anzahl Balkone: 4, Anzahl Terrassen: 1, Anzahl Loggias: 1, Balkon-Terrassen-Fläche: 38,16 m², Gartenfläche: 41,11 m², Bundesland: Wien, 5 Etagen, modernisiert: 2023
Anbieter der Immobilie
IM Lifestyle Properties GmbH
Stock-im-Eisen-Platz 3/26, 1010 WIEN
Online-ID: 2lgw25p
Referenznummer: OBGC20250909123531348ca22b5c694
Finde Angebote wie dieses
Günstige Immobilienfinanzierung einfach online berechnen
Persönliches Angebot berechnenWarum sehe ich diese Werbung? – Du siehst diese Werbung basierend auf Deiner Navigation auf unserer Website und der von Dir verwendeten Suchkriterien.
Diese Werbung wird bezahlt von durchblicker
Werbung melden
Hier geht es zu unserem Impressum, den Allgemeinen Geschäftsbedingungen, den Hinweisen zum Datenschutz und nutzungsbasierter Online-Werbung.