

ASPA Immobilien GmbH
Herr Björn Wellbrock
071 ···
Nr. anzeigenDieses Angebot ist Teil des Neubauprojekts
Häuser und Wohnungen in Oppenweiler
Preise & Kosten
Provision für Käufer
provisionsfrei
Lage
In einem ruhigen Wohngebiet am westlichen Ortsrand von Oppenweiler entstehen zwei Wohngebäude mit jeweils sieben Wohneinheiten und weiteren sechs Doppelhaushälften.
Dank der guten Infrastruktur finden Sie in Oppenweiler verschiedene Einkaufsmöglichkeiten, Ärzte, Apotheke, Banken und die Verwaltungsstelle des Rathauses...
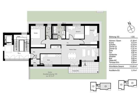
Die Wohnung
Wohnungslage
1. Geschoss (Erdgeschoss)
Bezug
2024
Wohnanlage
Das Neubauprojekt
Energie & Heizung
Warum sehe ich diese Anzeige? – Du siehst diese Anzeige basierend auf Ihrer Navigation auf unserer Website und den Suchkriterien, die du verwendet hast.
Weitere Energiedaten
Energieträger
Pellets
Heizungsart
Fußbodenheizung
Details
Objektbeschreibung
In der Mehlkinge, einem ruhigen Wohngebiet in der Gemeinde Oppenweiler, entstehen zwei Mehrfamilienhäuser mit je sieben Wohnungen sowie sechs Doppelhaushälften.
Die 2-, 3- und 4-Zimmer-Wohnungen mit Wohnflächen von 57 - 110 m² verfügen alle über eine Terrasse (mit Gartenanteil) oder einen Balkon mit...
Ausstattung
Alle Wohnungen werden von der ASPA Bauträger GmbH schlüsselfertig erstellt. Dabei wird viel Wert auf eine solide Bauweise und hochwertige Materialien gelegt:
- Aufzug in alle Etagen
- barrierearme und barriefreie Wohnungen (auch rollstuhl- oder seniorengerechter Ausbau möglich)
- Parkett- und Fliesenbödenauswahl...
Weitere Informationen
Sonstiges
Mit dem Kauf direkt vom Bauträger sichern Sie sich viele Vorteile:
- Provisionsfreier Kauf zum Festpreis
- Garantierter Bezugstermin
- Persönliche Ansprechpartner während der Bauphase
- Regionaler Bauträger seit über 25 Jahren in der Heimatregion tätig
Darüber hinaus bietet die ASPA-Gruppe...
Anbieter der Immobilie

Online-ID: 2lgxk5e
Referenznummer: 201902-103
Finde Angebote wie dieses
Hier geht es zu unserem Impressum, den Allgemeinen Geschäftsbedingungen, den Hinweisen zum Datenschutz und nutzungsbasierter Online-Werbung.