
Immobilien Sollmann+Zagel GmbH
Dieter Fritz
091 ···
Nr. anzeigenPreise & Kosten
zzgl. Nebenkosten
Kaution
4 KM
Provision für Mieter
siehe Sonstiges
Für die Vermietung von gewerblichen Objekten mit einer Mietlaufzeit von unter 5 Jahren 3,57 Monatsbruttowarmmieten (Bruttowarmmiete = Kaltmiete + sämtliche Nebenkosten + Heizung + MwSt. Weitere Informationen siehe Provisionshinweis.
Warum sehe ich diese Anzeige? – Du siehst diese Anzeige basierend auf Ihrer Navigation auf unserer Website und den Suchkriterien, die du verwendet hast.
Lage
Die Lagerhalle befindet sich in einem Gewerbegebiet Nürnberg Nord, zum Autobahnanschluss - sowie zum Flughafen sind es nur wenige Fahrminuten.
Die Industriefläche
Kategorie
Freiflächen
Baujahr
1978
Bezug
sofort
Energie & Heizung
Warum sehe ich diese Anzeige? – Du siehst diese Anzeige basierend auf Ihrer Navigation auf unserer Website und den Suchkriterien, die du verwendet hast.
Weitere Energiedaten
Energieträger
Öl
Details
Objektbeschreibung
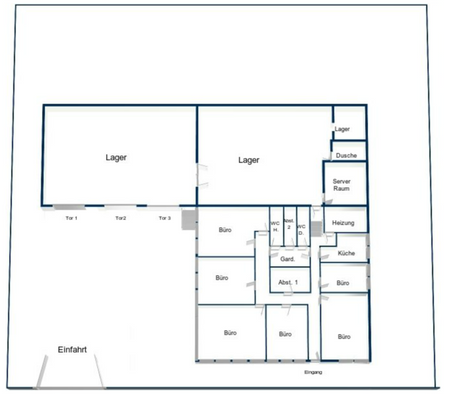
Die Halle wurde 1978 in Massivbauweise erbaut und ist in 2 Einheiten eingeteilt, die reine Lagerfläche beträgt ca. 300 qm, die Büroeinheit mit Teeküche, WCs, Dusche und Serverraum hat insgesamt 9 Räume mit einer Fläche von ca. 216 qm.
Die Büroräume sind komplett eingerichtet, alle Einrichtungsgegenstände können ohne Ablöse...
Ausstattung
Ölheizung, Betonboden, Teppichboden, Magnetwand, eingebaute Beleuchtung, Serverraum, Teeküche, Büroausstattung.
WCs`, Dusche, 3 Rolltore, Außenstellplätze, Büroräume, Hallenfläche, gute Zufahrt
Preisinformation
15 Stellplätze
Weitere Informationen
Provisionshinweis
siehe Sonstiges
Für die Vermietung von gewerblichen Objekten mit einer Mietlaufzeit von unter 5 Jahren 3,57 Monatsbruttowarmmieten (Bruttowarmmiete = Kaltmiete + sämtliche Nebenkosten + Heizung + MwSt.), bei einer Mietlaufzeit ab 5 Jahren und länger beträgt die Provision 3,57 % aus der 10-fachen...
Anbieter der Immobilie

Immobilien Sollmann+Zagel GmbH
Online-ID: 2lgxm5y
Referenznummer: N9211
Finde Angebote wie dieses
Hier geht es zu unserem Impressum, den Allgemeinen Geschäftsbedingungen, den Hinweisen zum Datenschutz und nutzungsbasierter Online-Werbung.