
Peter Wagner Immobilien AG
Michael Tausch
082 ···
Nr. anzeigenPreise & Kosten
Provision für Käufer
3,57 %
Lage
Das Haus befindet sich in bester Wohnlage von Mering, in einer ruhigen, gewachsenen Nachbarschaft, die überwiegend von gepflegten Einfamilien- und Reihenhäusern geprägt ist. Hier verbinden sich familienfreundliche Umgebung, Natur und perfekte Anbindung auf ideale Weise.
Die Umgebung punktet mit viel Grün und einem...
Das Haus
Kategorie
Einfamilienhaus
Baujahr
1974
Energie & Heizung
Warum sehe ich diese Anzeige? – Du siehst diese Anzeige basierend auf Ihrer Navigation auf unserer Website und den Suchkriterien, die du verwendet hast.
Energieausweistyp
Bedarfsausweis
Gebäudetyp
Wohngebäude
Baujahr laut Energieausweis
1974
Wesentliche Energieträger
Öl
Effizienzklasse
G
Endenergiebedarf
238,00 kWh/(m²·a)
Weitere Energiedaten
Energieträger
Öl
Details
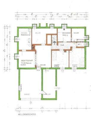
Objektbeschreibung
Dieses Einfamilienhaus aus dem Jahr 1974 präsentiert sich als außergewöhnlich vielseitige Immobilie mit einem seltenen Maß an Gestaltungsfreiheit.
Dank seiner massiven Bauweise und der leichten Hanglage bietet es bereits heute eine großzügige Wohnstruktur, eröffnet jedoch ebenso attraktive Optionen für Sanierung...
Ausstattung
Das Einfamilienhaus wurde 1974 in solider Massivbauweise errichtet und bietet eine durchdachte Raumstruktur mit vielen flexibel nutzbaren Flächen. Die Ausstattung stammt überwiegend aus dem Baujahr und bildet eine stabile Basis für Modernisierungen oder eine umfassende Sanierung nach individuellen Vorstellungen.
Vier...
Weitere Informationen
Stichworte
Garage vorhanden, Gesamtfläche: 266,00 m², Anzahl der Schlafzimmer: 4, Anzahl der Badezimmer: 2, 2 Etagen
Anbieter der Immobilie
Peter Wagner Immobilien AG
Holbeinstr. 7, 86150 Augsburg
Online-ID: 2lgyp5j
Referenznummer: 158384
Finde Angebote wie dieses
Hier geht es zu unserem Impressum, den Allgemeinen Geschäftsbedingungen, den Hinweisen zum Datenschutz und nutzungsbasierter Online-Werbung.