

Karen Ulrich Immobilien GmbH
Frau Karen Ulrich
+49 ···
Nr. anzeigenPreise & Kosten
Provision für Käufer
6,98% inkl. MwSt. inkl. MwSt.
Lage
Der idyllische Ort Meckelfeld grenzt an die Südliche Stadtgrenze von Hamburg. Meckelfeld gehört zu Seevetal und ist mit ungefähr 11.000 Einwohnern der Größte Ort der Samtgemeinde. Mit der Hamburger Telefonvorwahl ist man sowohl ein Teil Hamburgs als auch ein Teil Niedersachsens. Meckelfeld verfügt über einen Bahnanschluß...
Das Haus
Kategorie
Mehrfamilienhaus
Bezug
Sofort - N.V.
Energie & Heizung
Warum sehe ich diese Anzeige? – Du siehst diese Anzeige basierend auf Ihrer Navigation auf unserer Website und den Suchkriterien, die du verwendet hast.
Energieausweistyp
Bedarfsausweis
Gebäudetyp
Wohngebäude
Wesentliche Energieträger
GAS
Gültigkeit
bis 03.06.2034
Effizienzklasse
H
Endenergiebedarf
379,70 kWh/(m²·a)
Weitere Energiedaten
Energieträger
Gas
Heizungsart
Zentralheizung
Details
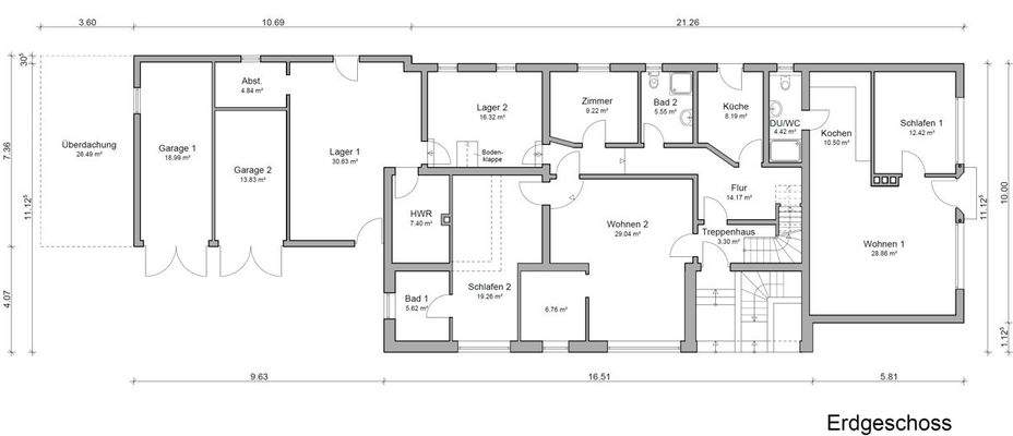
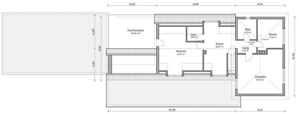
Objektbeschreibung
Das Mehrfamilienhaus (3 Wohneinheiten) mit ca. 271 m² Wohnfläche sowie knapp 177m² Nutzfläche befindet sich auf einem Grundstück mit ca. 1.700 m² Fläche im Herzen von Meckelfeld. im vordere Bereich befindet sich ein ehemaliger Einzelhandel, der in eine Wohnung umgewandelt wurde. Sie besteht aus zwei Zimmern, Küche und...
Ausstattung
- Grundstück mit ca. 1.700 m²
- Derzeit bebaut mit MFH mit 3 Wohneinheiten (1 Vermietet)
- Nettomieteinnahmen (ab 01.05 - 7.788 € p.a.)
- Bebauung nach B-Plan (Vorne: GRZ 0,4 - GFZ 0,5 hinten: GRZ&GFZ: 0,4)
- Wohnung 1 (Vermietet) = 56,20 m² (2 ZImmer)
- Wohnung 2 (EG Links) = 101.11 m² auf 3 Zimmer + 1...
Weitere Informationen
Sonstiges
Wir möchten, dass Sie zufrieden sind! Wir sind ein erfahrener Makler und seit 1987 tätig. Wir stehen Ihnen für alle Fragen rund um die Immobilie zur Verfügung. Sie möchten eine Bewertung ihrer Immobilie- wir kommen selbstverständlich unverbindlich zu Ihnen. Der Makler-Vertrag mit uns kommt durch schriftliche...
Anbieter der Immobilie
Karen Ulrich Immobilien GmbH
Marquardtsweg 2, 21217 Seevetal

Online-ID: 2lh2c5c
Referenznummer: 1131
Finde Angebote wie dieses
Hier geht es zu unserem Impressum, den Allgemeinen Geschäftsbedingungen, den Hinweisen zum Datenschutz und nutzungsbasierter Online-Werbung.