

NUSSGRÄBER IMMOBILIEN GmbH
Frau Rita Schwenk
070 ···
Nr. anzeigenPreise & Kosten
Provision für Käufer
4,76 % inkl. 19 % MwSt. inkl. MwSt.
Lage
Das Haus befindet sich zentrumsnah gelegen in Ohmden.
Die Gemeinde Ohmden liegt am östlichen Rand des Kreises Esslingen an der Grenze zum Landkreis Göppingen und zählt heute rund 1.750 Einwohner. Die nur wenige Kilometer entfernte Schwäbische Alb bietet ein breites Freizeit- und Naherholungsangebot.
Kindergarten, Schule...
Das Haus
Kategorie
Bauernhaus
Bezug
nach Vereinbarung
Energie & Heizung
Warum sehe ich diese Anzeige? – Du siehst diese Anzeige basierend auf Ihrer Navigation auf unserer Website und den Suchkriterien, die du verwendet hast.
Energieausweistyp
Bedarfsausweis
Gebäudetyp
Wohngebäude
Wesentliche Energieträger
HOLZ
Gültigkeit
02.07.2025 bis 01.07.2035
Effizienzklasse
H
Endenergiebedarf
452,00 kWh/(m²·a)
Weitere Energiedaten
Energieträger
Elektro
Heizungsart
Ofen
Details
Objektbeschreibung
Hier kann Geschichte bewahrt werden. Dieses historische Fachwerkhaus, erbaut um 1735, ist sehr gespannt, was es noch alles erleben darf.
Mit seiner rustikalen Ausstrahlung und dem ursprünglichen Charme ist es ein wahres Schmuckstück für Liebhaber traditioneller Bausubstanz.
Das Haus ist größtenteils...
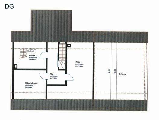
Ausstattung
- 3 Zimmer
- große Küche
- Tageslicht-Bad
- separates WC
- Bühne
- Scheune
- Werkstatt
- Gewölbekeller
- Garten
- Stellplätze
ALLE RENOVIERUNGEN AUF EINEN BLICK
- Dach (ca. 1975)
- Obergeschoss (ca. 1984)
- Anbau Bad und WC (ca. 1984)
ENERGIEAUSWEIS
Bedarfsausweis...
Preisinformation
2 Stellplätze
Weitere Informationen
Sonstiges
Immobilienfinanzierung - WIR HELFEN IHNEN!
Über unsere starken Partner sind wir direkt mit über 400 Banken vernetzt. Da wir alle Immobilienunterlagen bereits haben, brauchen wir nur Ihre persönlichen Unterlagen und ermöglichen Ihnen eine schnelle und reibungslose Finanzierungsanfrage. Zusätzlich prüfen wir...
Anbieter der Immobilie

Online-ID: 2lh535d
Referenznummer: 2676
Finde Angebote wie dieses
Hier geht es zu unserem Impressum, den Allgemeinen Geschäftsbedingungen, den Hinweisen zum Datenschutz und nutzungsbasierter Online-Werbung.