
IM Lifestyle Properties GmbH
Herr Christian Kiedl
+43 ···
Nr. anzeigenPreise & Kosten
Kaution
3 Bruttomonatsmieten
Provision für Mieter
3 Bruttomonatsmieten zzgl. 20% USt.
Warum sehe ich diese Anzeige? – Du siehst diese Anzeige basierend auf Ihrer Navigation auf unserer Website und den Suchkriterien, die du verwendet hast.
Die Ladenfläche
Baujahr
1896
Erdgeschoss
Energie & Heizung
Warum sehe ich diese Anzeige? – Du siehst diese Anzeige basierend auf Ihrer Navigation auf unserer Website und den Suchkriterien, die du verwendet hast.
Heizwärmebedarf (HWB)
188,62 kWh/(m²·a)
Gesamtenergieeffizienz (fGEE)
4,05
Weitere Energiedaten
Energieträger
Gas
Heizungsart
Etagenheizung
Details
Objektbeschreibung
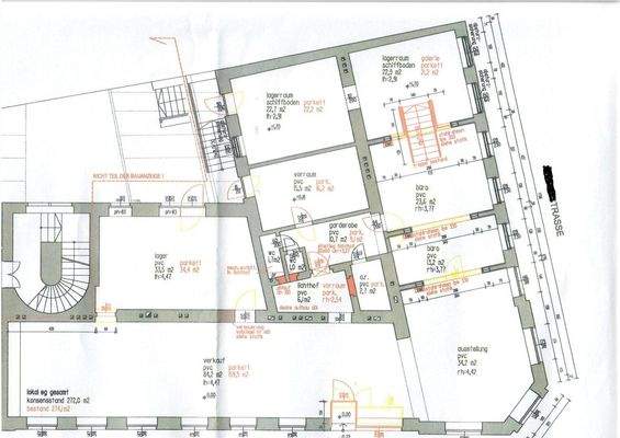
Zur unbefristeten Vermietung gelangt ein exklusives Geschäftslokal mit einer Fläche von 274,10 m² im 7. Wiener Gemeindebezirk. Gastronomie ist nicht erwünscht.
Das Gewerbeobjekt befindet sich im Erdgeschoss eines gepflegten Altbaus und erstreckt sich über eine Nutzfläche von ca. 274 m². Es teilt sich auf in einen...
Preisinformation
Nettokaltmiete: 3.837,40 EUR
Weitere Informationen
Stichworte
Nutzfläche: 274,10 m², Anzahl der separaten WCs: 2, Bundesland: Wien
Anbieter der Immobilie
IM Lifestyle Properties GmbH
Stock-im-Eisen-Platz 3/26, 1010 WIEN
Online-ID: 2lh785f
Referenznummer: OBGC202501291225383742d7600a1bf
Finde Angebote wie dieses
Hier geht es zu unserem Impressum, den Allgemeinen Geschäftsbedingungen, den Hinweisen zum Datenschutz und nutzungsbasierter Online-Werbung.