
Deutsche Bank Immobilien GmbH
Herr Wolfgang Mardo
085 ···
Nr. anzeigenPreise & Kosten
Provision für Käufer
3,57 % inkl. MwSt.
Lage
Ortenburg liegt zentral im niederbayerischen Bäderdreieck und bietet Gewerbetreibenden eine strategisch attraktive Lage mit hervorragender Anbindung an wirtschaftlich bedeutende Städte wie Passau, Vilshofen, Bad Griesbach, Rotthalmünster und Pocking. Die Nähe zu den Autobahnen A3 und A94 sowie zur österreichischen Grenze...
Die Industriefläche
Kategorie
Werkstatt
Baujahr
2009
Bezug
Nach Absprache
Energie & Heizung
Warum sehe ich diese Anzeige? – Du siehst diese Anzeige basierend auf Ihrer Navigation auf unserer Website und den Suchkriterien, die du verwendet hast.
Wärme
Strom
Energieausweistyp
Bedarfsausweis
Gebäudetyp
Nicht-Wohngebäude
Baujahr laut Energieausweis
2015
Wesentliche Energieträger
Gas
Gültigkeit
07.10.2025 bis 06.10.2035
Endenergiebedarf (Wärme)
116,70 kWh/(m²·a)
Endenergiebedarf (Strom)
34,60 kWh/(m²·a)
Weitere Energiedaten
Energieträger
Gas
Heizungsart
Zentralheizung
Details
Objektbeschreibung
Das markante Gewerbeobjekt befindet sich an der stark frequentierten Umgehungsstraße in Ortenburg, verkehrsgünstig zwischen Vilshofen und Bad Grießbach gelegen. Die großzügigen, vollverglasten Ausstellungsflächen sind von der Straße aus bestens einsehbar und bieten optimale Präsentationsmöglichkeiten.
Das massiv...
Ausstattung
Individuelle Ausstattungsmerkmale:
- PV 54 KWp
- Garage
- Carport
- gute Infrastruktur
- elektrische Rolläden
- Photovoltaikanlage
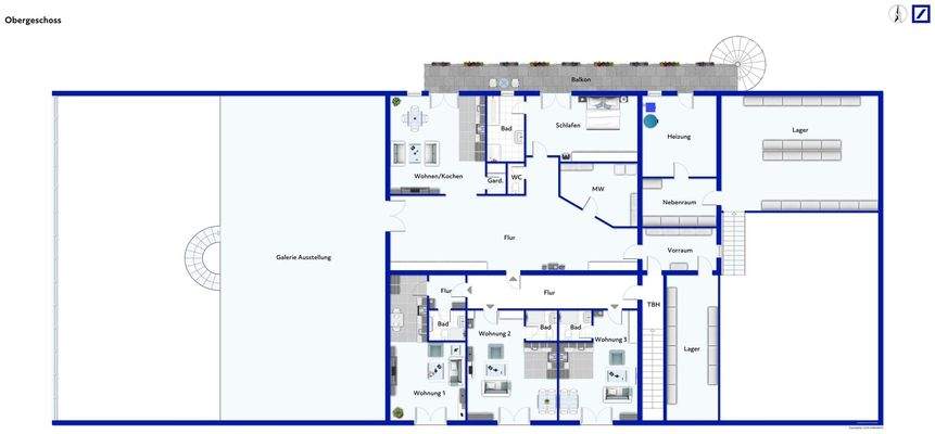
Das Objekt bietet vielfältige Möglichkeiten. Derzeit sind die Flächen wie folgt aufgeteilt
Erdgeschoß:
-ca 400m² Ausstellfläche
-ca 170m² Werkstatt /...
Weitere Informationen
Sonstiges
HINWEIS: Alle Informationen, Bilder und Dateien im Exposé beruhen auf den Informationen und erhaltenen Unterlagen der Verkäufer bzw. Dritter. Eine Haftung für die Angaben im Exposé kann deshalb durch uns nicht übernommen werden. Unsere Angebote sind freibleibend und unverbindlich. Zwischenverkauf und...
Dokumente
Anbieter der Immobilie
Deutsche Bank Immobilien GmbH
Rottstraße 13, 94060 Pocking
Online-ID: 2lh7k5t
Referenznummer: 44230108-1000793
Finde Angebote wie dieses
Hier geht es zu unserem Impressum, den Allgemeinen Geschäftsbedingungen, den Hinweisen zum Datenschutz und nutzungsbasierter Online-Werbung.