
David Mergelmeyer Immobilien
Herr David Mergelmeyer
004 ···
Nr. anzeigenPreise & Kosten
Kaution
3-fache Netto-Kaltmiete bzw. Bankbürgschaft
Provision für Mieter
1,5-fache mtl. Netto-Kaltmiete zzgl. MwSt. zzgl. MwSt.
Warum sehe ich diese Anzeige? – Du siehst diese Anzeige basierend auf Ihrer Navigation auf unserer Website und den Suchkriterien, die du verwendet hast.
Lage
Die angebotene Gewerbefläche befindet sich in einem äußerst attraktiven Mischgebiet im Herzen von Ritterhude, einem florierenden Standort im Landkreis Osterholz-Scharmbeck, unweit der Hansestadt Bremen. Diese Lage ist von herausragender Bedeutung für Handwerksbetriebe, die eine starke regionale Präsenz...
Die Industriefläche
Kategorie
Lagerhalle
Baujahr
2024
Bezug
nach Absprache
Energie & Heizung
Warum sehe ich diese Anzeige? – Du siehst diese Anzeige basierend auf Ihrer Navigation auf unserer Website und den Suchkriterien, die du verwendet hast.
Energieausweis: für diesen Gebäudetyp nicht notwendig
Details
Objektbeschreibung
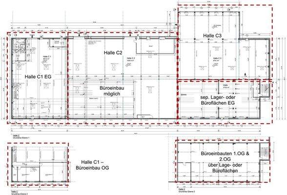
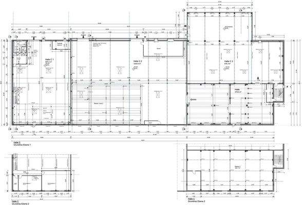
In einem Mischgebiet in Ritterhude bieten wir diese Hallenflächen mit der Option zum Einbau von Büros (auf Mieterwunsch) zur Anmietung an.
Das Objekt befindet sich auf einem Gewerbehof und wird nach Mieterwunsch saniert. Einzug ist ca. ein Jahr nach Mietvertragsunterschrift möglich.
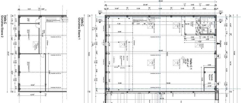
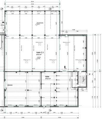
Diese Halle (C3) umfasst eine...
Ausstattung
A. Allgemein
. Warmhalle mit ca. 680 m²
. Büroeinbauten möglich
. Ausbau nach Mieterwunsch
B. Ausstattung
. 1 Rolltor 3 x 4 m (teilweise elektrisch)
. ebenerdige Andienung
. Infrarot-Deckenheizung
. ISO-Fenster
. Lichtluken in der Hallendecke
. EDV-Verkabelung in den...
Preisinformation
Nettokaltmiete: 4.080,00 EUR
Weitere Informationen
Sonstiges
Alle Angaben sind ohne Gewähr und basieren ausschließlich auf Informationen, die uns von unserem Auftraggeber zur Verfügung gestellt wurden. Wir übernehmen keine Gewähr für die Vollständigkeit, Richtigkeit und Aktualität dieser Angaben.
Unsere Vermittlungsprovision umfasst für den Mieter die 1,5-fache mtl...
Anbieter der Immobilie
David Mergelmeyer Immobilien
Konsul-Smidt-Straße 82a, 28217 Bremen
Online-ID: 2lhav5s
Referenznummer: 2025-140
Finde Angebote wie dieses
Hier geht es zu unserem Impressum, den Allgemeinen Geschäftsbedingungen, den Hinweisen zum Datenschutz und nutzungsbasierter Online-Werbung.