
iad Deutschland GmbH
Frau Victoria LYSKOVA
004 ···
Nr. anzeigenPreise & Kosten
Provision für Mieter
Provisionsfrei
Warum sehe ich diese Anzeige? – Du siehst diese Anzeige basierend auf Ihrer Navigation auf unserer Website und den Suchkriterien, die du verwendet hast.
Lage
Das Bürogebäude befindet sich in einem gut angebundenen Gewerbe- und Wohngebiet in Berlin-Reinickendorf.
ÖPNV-Anbindung:
- S-Bahn: S25/S26 (Bahnhof Eichborndamm) in wenigen Minuten erreichbar
- Buslinien: Mehrere Busverbindungen in direkter Umgebung
- Autobahn: Schnelle Anbindung an die A111 für optimale...
Büro-/Praxisfläche
Kategorie
Bürogebäude
Baujahr
1939
Bezug
sofort
Energie & Heizung
Warum sehe ich diese Anzeige? – Du siehst diese Anzeige basierend auf Ihrer Navigation auf unserer Website und den Suchkriterien, die du verwendet hast.
Wärme
Strom
Energieausweistyp
Verbrauchsausweis
Gebäudetyp
Nicht-Wohngebäude
Baujahr laut Energieausweis
1939
Wesentliche Energieträger
GAS
Gültigkeit
bis 30.11.2027
Endenergieverbrauch (Wärme)
228,00 kWh/(m²·a)
Endenergieverbrauch (Strom)
37,00 kWh/(m²·a)
Details
Objektbeschreibung
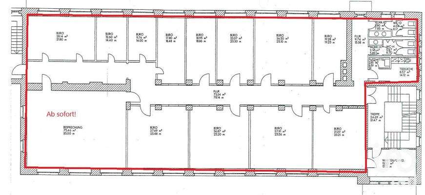
Diese vielseitig nutzbaren Büroflächen befinden sich in einem Gewerbegebäude mit besonderem industriellem Charme aus dem Jahr 1939 im Berliner Bezirk Reinickendorf-Borsigwalde. Die Immobilie bietet eine flexible Raumaufteilung mit ca. 10 hellen und großzügigen Büroräumen pro Etage, die sowohl einzeln als auch zusammenhängend...
Ausstattung
- Helle Räume: Große Fensterfronten für viel Tageslicht
- Technische Infrastruktur: Steckdosenleisten und moderne Netzwerkanbindung, großer Serverraum
- Bodenbelag: gepflegter Teppichboden
- Beleuchtung: Integrierte Deckenbeleuchtung für optimale Lichtverhältnisse
- Sanitäreinrichtungen und Teeküchen: Auf jeder...
Preisinformation
Nettokaltmiete: 9.000,00 EUR
Weitere Informationen
Sonstiges
An den Kunden durch uns weitergeleitete Angaben und Informationen zu Objekten liegen die uns erteilten Auskünfte des Veräußerers bzw. Vermieters zugrunde. Die I@D Deutschland GmbH hat diese Angaben nicht geprüft. Vielmehr obliegt die Prüfung der Richtigkeit und/oder Vollständigkeit der Angaben allein dem Kunden...
Anbieter der Immobilie
iad Deutschland GmbH
Schleusenstraße 15-17, 60327 Frankfurt am Main
Online-ID: 2lhbw58
Referenznummer: iad-2887
Finde Angebote wie dieses
Hier geht es zu unserem Impressum, den Allgemeinen Geschäftsbedingungen, den Hinweisen zum Datenschutz und nutzungsbasierter Online-Werbung.