
Debeka Bausparkasse AG
Herr Artur König
Kontaktiere den Anbieter schriftlich, es ist keine Telefonnummer hinterlegt.
Preise & Kosten
Provision für Käufer
3,57% inkl. MwSt.
Abschreibung/Anlage
Denkmalschutz-Afa
Lage
Die Wohnung liegt im beliebten Stadtteil Stadtfeld West- einer der gefragtesten Wohngegenden Magdeburgs.
Einkaufsmöglichkeiten, Cafés, Restaurants sowie Ärzte und Schulen sind bequem fußläufig erreichbar. Die Innenstadt ist nur wenige Minuten entfernt und auch mit öffentlichen Verkehrsmitteln oder dem Fahrrad schnell...
Die Wohnung
Wohnungslage
Erdgeschoss
Bezug
sofort
Wohnanlage
Energie & Heizung
Warum sehe ich diese Anzeige? – Du siehst diese Anzeige basierend auf Ihrer Navigation auf unserer Website und den Suchkriterien, die du verwendet hast.
Energieausweis: für diesen Gebäudetyp nicht notwendig
Details
Objektbeschreibung
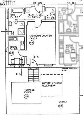
Diese attraktive 1-Zimmer-Eigentumswohnung befindet sich im Erdgeschoss eines gepflegten und denkmalgeschützten Mehrfamilienhauses im beliebten Magdeburger Stadtteil Stadtfeld West - einer der begehrtesten Wohnlagen der Landeshauptstadt.
Mit einer Wohnfläche von ca. 52 m² überzeugt die Wohnung durch ihre durchdachte...
Ausstattung
- Großzügiger Wohn- und Schlafbereich mit angenehmem Grundriss
- Lichtdurchflutetes Badezimmer mit Dusche und Badewanne
- Separate Küche mit optimaler Raumaufteilung
- Praktischer Abstellraum innerhalb der Wohnung
- Eigene, sonnige, 12 m² große Terrasse mit Stromanschluss und Blick ins Grüne - perfekt zum...
Weitere Informationen
Sonstiges
Die genannten Informationen beruhen auf den Angaben des Verkäufers. Für die Richtigkeit und Vollständigkeit der Angaben wird keine Gewähr oder Haftung übernommen.
Seit dem 25. Mai 2018 gilt in Deutschland die EU-Datenschutz-Grundverordnung (DS-GVO). Sie regelt, wie private Unternehmen und öffentliche...
Anbieter der Immobilie

Debeka Bausparkasse AG
Debeka-Platz 2, 56073 Koblenz
Herr Artur König
Dein Ansprechpartner
Kontaktiere den Anbieter schriftlich, es ist keine Telefonnummer hinterlegt.
Online-ID: 2lhfk5w
Referenznummer: 1008908#4Fd7ty
Finde Angebote wie dieses
Hier geht es zu unserem Impressum, den Allgemeinen Geschäftsbedingungen, den Hinweisen zum Datenschutz und nutzungsbasierter Online-Werbung.