

Rustler Immobilientreuhand GmbH
Frau Alessa Valentina Huber
+43 ···
Nr. anzeigenPreise & Kosten
inkl. Betriebskosten
Kaution
11.700,00
Provision für Mieter
3 BMM
Warum sehe ich diese Anzeige? – Du siehst diese Anzeige basierend auf Ihrer Navigation auf unserer Website und den Suchkriterien, die du verwendet hast.
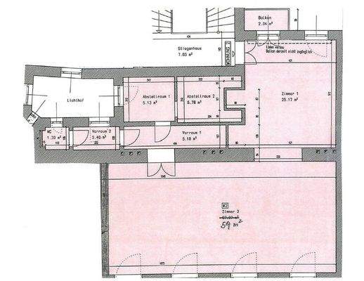
Die Ladenfläche
Kategorie
Laden
Bezug
nach Absprache
Energie & Heizung
Warum sehe ich diese Anzeige? – Du siehst diese Anzeige basierend auf Ihrer Navigation auf unserer Website und den Suchkriterien, die du verwendet hast.
Heizwärmebedarf (HWB)
182,20 kWh/(m²·a)
Gesamtenergieeffizienz (fGEE)
1,33
Weitere Energiedaten
Energieträger
Fernwärme
Details
Objektbeschreibung
Willkommen in einem Geschäftslokal, das mehr ist als nur eine Adresse es ist eine Bühne für Ihre Marke.
Mitten in der Klagenfurter Innenstadt, umgeben von Geschichte, Kultur und Stadtleben, präsentiert sich dieses Juwel in einem prachtvollen Altbau, der sich mit der Selbstverständlichkeit eines Grandseigneurs modern...
Preisinformation
Nettokaltmiete: 2.950,00 EUR
Weitere Informationen
Stichworte
Nutzfläche: 220,65 m²
Anbieter der Immobilie

Online-ID: 2lhgc5v
Referenznummer: 141/84330
Finde Angebote wie dieses
Hier geht es zu unserem Impressum, den Allgemeinen Geschäftsbedingungen, den Hinweisen zum Datenschutz und nutzungsbasierter Online-Werbung.