

Spain Homes
Herr Santiago de Cordoba Estepa
+34 ···
Nr. anzeigenPreise & Kosten
Provision für Käufer
Bitte beachte, das Angebot kann bei Vertragsabschluss die Zahlung einer Provision beinhalten. Weitere Informationen erhältst Du vom Anbieter.
Das Haus
Kategorie
Einfamilienhaus
Baujahr
2027
Bezug
Spain Homes
Energie & Heizung
Warum sehe ich diese Anzeige? – Du siehst diese Anzeige basierend auf Ihrer Navigation auf unserer Website und den Suchkriterien, die du verwendet hast.
Weitere Energiedaten
Heizungsart
Fußbodenheizung
Details
Objektbeschreibung
Kurzbeschreibung
Das Haus in Mijas, Málaga, bietet die seltene Gelegenheit, eine großzügige Immobilie in der prestigeträchtigen La Cala Golf-Gemeinde zu erwerben.
Objekt
Luxuriöses Haus mit Panoramablick direkt am Golfplatz in La Cala Golf Mijas
Das zum Verkauf stehende Haus in Mijas, Málaga, erstreckt sich...
Weitere Informationen
Stichworte
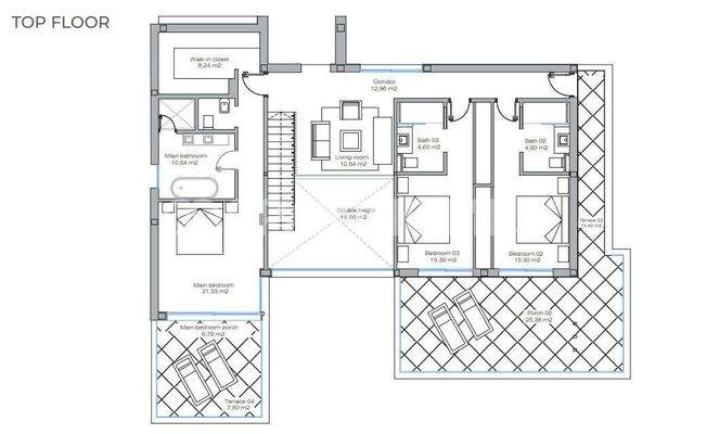
Carport vorhanden, Nutzfläche: 267,00 m², Ladenfläche: 267,00 m², Anzahl der Schlafzimmer: 4, Anzahl der Badezimmer: 4, Anzahl der Wohn-Schlafzimmer: 2, Bundesland: Mijas, 2 Etagen
Anbieter der Immobilie
Spain Homes
C/El Montículo 8, Benalmádena, 29631 MÁLAGA

Online-ID: 2lhh959
Referenznummer: AGP-1004-4-DetachedVilla
Finde Angebote wie dieses
Hier geht es zu unserem Impressum, den Allgemeinen Geschäftsbedingungen, den Hinweisen zum Datenschutz und nutzungsbasierter Online-Werbung.