
SparkasseSchwaben-Bodensee i.V. der Sparkasse-Immobilien- Vermittlungs-GmbH
Herr Günter Scheitle
083 ···
Nr. anzeigenPreise & Kosten
Provision für Käufer
provisionsfrei
Lage
Nur ca. 8 Kilometer von Mindelheim werden zwei freistehende Einfamilienhäuser im Süden der Gemeinde Salgen errichtet. Das Grundstück liegt wunderbar ruhig in einer Sackgasse, somit können Sie ohne störenden Verkehrslärm Ihre Feierabendruhe genießen. Die Gemeinde Salgen beheimatet in den Ortsteilen Salgen, Bronnen, Hausen...
Das Haus
Kategorie
Einfamilienhaus
Baujahr
2025
Energie & Heizung
Warum sehe ich diese Anzeige? – Du siehst diese Anzeige basierend auf Ihrer Navigation auf unserer Website und den Suchkriterien, die du verwendet hast.
Energieausweis: für diesen Gebäudetyp nicht notwendig
Weitere Energiedaten
Haustyp
Massivhaus
Details
Objektbeschreibung
Kurzbeschreibung
Baubeginn nach Absprache! - Rohbau und dann selbst tätig werden!
Objekt
Die Einfamilienhäuser werden von einer alteingesessenen, heimischen Baufirma erbaut.
Moderner, gehobener Baustil mit offenem Koch-/Ess- Wohnbereich, ein zusätzlicher Raum für Büro oder Hauswirtschaft im Erdgeschoss...
Ausstattung
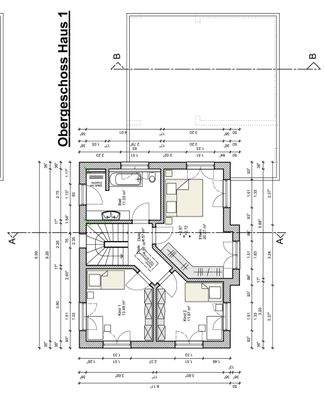
Raumprogramm:
EG: offener Wohn-/Ess- Kochbereich, Büro, Garderobe, Diele, Gäste-WC
OG: drei Schlafzimmer, Bad mit Wanne, Dusche und Tageslicht
KG: voll unterkellert, Hobbyraum, Vorratsraum, Technikraum
Bauweise:
Massiv 36,5 cm Lambda 008; Innenwände ebenfalls...
Weitere Informationen
Stichworte
Garage vorhanden, Bundesland: Bayern
Anbieter der Immobilie
SparkasseSchwaben-Bodensee i.V. der Sparkasse-Immobilien- Vermittlungs-GmbH
St.-Josefs-Kirchplatz 6-8, 87700 Memmingen
Online-ID: 2lhlq59
Referenznummer: 1/20/004-004/010682
Finde Angebote wie dieses
Hier geht es zu unserem Impressum, den Allgemeinen Geschäftsbedingungen, den Hinweisen zum Datenschutz und nutzungsbasierter Online-Werbung.