

IFC Immobiliengesellschaft mbH
Herr Paul-Ludwig Blümel
034 ···
Nr. anzeigenPreise & Kosten
Provision für Käufer
Die Provision beträgt 3,5 % vom Kaufpreis (zzgl. der geltenden MwSt.).
Das Haus
Kategorie
Einfamilienhaus
Geschosse
2 Geschosse
Baujahr
1968
Energie & Heizung
Warum sehe ich diese Anzeige? – Du siehst diese Anzeige basierend auf Ihrer Navigation auf unserer Website und den Suchkriterien, die du verwendet hast.
Energieausweistyp
Verbrauchsausweis
Gebäudetyp
Wohngebäude
Baujahr laut Energieausweis
1968
Wesentliche Energieträger
Erdgas
Gültigkeit
02.09.2025 bis 02.09.2035
Effizienzklasse
A
Endenergieverbrauch
35,60 kWh/(m²·a)
Details
Objektbeschreibung
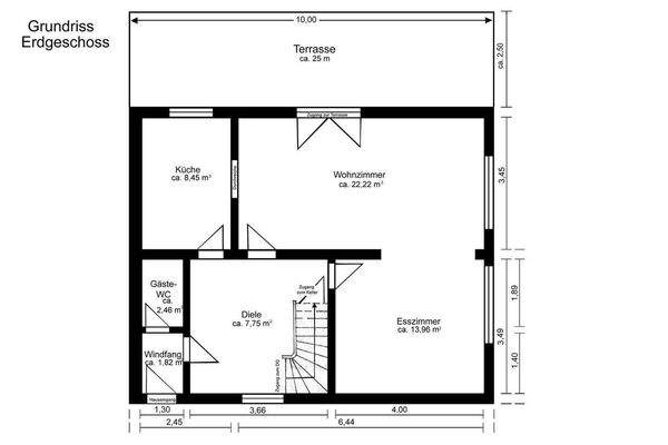
Erdgeschoss:
großes Wohnzimmer mit Zugang zur Terrasse, Küche, Diele, Gäste- WC, Windfang
Ober- / Dachgeschoss:
Schlafzimmer, 2 Kinderzimmer, Bad, Flur
Dachspitze:
für Abstellzwecke geeignet
Unter- / Kellerschoss:
vollständig unterkellert
Wohnfläche:
ca. 90 m²
zzgl. ca. 25 m²...
Ausstattung
ca. 1968 - Originaldach - gut erhalten
ca. 2000 - aufgearbeitet
Fassade:
Rauputz
ca. 2015 - gestrichen
Fenster:
ca. 2004 - Kunststoff innen weiß, außen braun, Großteils mit Jalousien
EG: Großteils mit elektrischen Jalousien, 3 Holzfenster mit Doppelverglasung
DG: 1 Holzfenster mit...
Weitere Informationen
Extras:
- Garage und weiterer Stellplatz vorhanden
- gepflegter Garten
- gepflasterte Zufahrt
- Pool
- Zaunanlage zur Straßenseite
Erschließung:
Strom, Wasser, Gartenwasserzähler, Erdgas, Kanalisation, Telefon- und Internetanschluss vorhanden
Stichworte
Versorgung: Städtische...
Dokumente
Anbieter der Immobilie

Online-ID: 2lhq65d
Referenznummer: 2010
Finde Angebote wie dieses
Hier geht es zu unserem Impressum, den Allgemeinen Geschäftsbedingungen, den Hinweisen zum Datenschutz und nutzungsbasierter Online-Werbung.